

City-Residence GmbH
Herr Bernemann
069 ···
Nr. anzeigenPreise & Kosten
zzgl. Nebenkosten
Kaution
2 Monatsmieten
Warum sehe ich diese Anzeige? – Du siehst diese Anzeige basierend auf Ihrer Navigation auf unserer Website und den Suchkriterien, die du verwendet hast.
Lage
Gutes Wohngebiet in au?ergew?hnlich schöner Umgebung
ca. 9km östlich der Innenstadt
PKW:
ausreichende Parkmöglichkeiten auf der Straße
Einkaufen:
Supermarkt REWE (13 Min. zu Fuß)
Freizeit:
Main (1 Min. zu Fuß) Stadtpark (1 Min. zu Fuß) Offenbach Zentrum (4000m) Naturschutzgebiet Rumpenheim (13 Min...
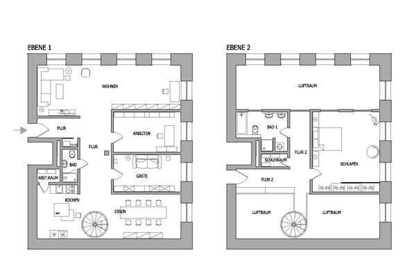
Die Wohnung
Kategorie
Maisonette
Wohnungslage
1. Geschoss
Bezug
01.01.2026
Wohnanlage
Energie & Heizung
Warum sehe ich diese Anzeige? – Du siehst diese Anzeige basierend auf Ihrer Navigation auf unserer Website und den Suchkriterien, die du verwendet hast.
Weitere Energiedaten
Energieträger
Gas
Heizungsart
Zentralheizung
Details
Objektbeschreibung
Bitte beachten Sie: Die Wohnung ist komplett möbliert und ausgestattet.
Die Gesamtmiete beinhaltet die Nebenkosten.
Gesamtmiete 3900 ,- Eur
inklusive Nebenkosten
* Fensterfront mit Blick auf den Main
* Großzügig geschnittene Galerie mit hoher Decke
* Mit Tiefgaragenstellplatz und Aufzug direkt...
Ausstattung
* Allgemein
- elegante Möblierung im gut kombinierten Stil
- hochwertiges Massivholzparkett
* Technische Ausstattung
- eigener Internetanschluss
- Fernseher
- große moderne Fenster, Außen-Rolläden
Preisinformation
1 Tiefgaragenstellplatz
Weitere Informationen
Sonstiges
max. 3 Personen, nur an Nichtraucher
Wichtige Info:
Zur schnellen Bearbeitung Ihrer Anfrage empfehlen wir Ihnen, sich direkt bei uns auf www.city-residence.de anzumelden und uns die Eckdaten Ihrer Wohnungssuche zu nennen.
Gerne kommt ein Kundenberater zeitnah auf Sie zu, um die nächsten Schritte zu...
Anbieter der Immobilie
City-Residence GmbH
Hansaallee 154, 60320 Frankfurt am Main

Online-ID: 2m9qt5d
Referenznummer: 949054
Finde Angebote wie dieses
Hier geht es zu unserem Impressum, den Allgemeinen Geschäftsbedingungen, den Hinweisen zum Datenschutz und nutzungsbasierter Online-Werbung.