

Johannes Menting Maklerhaus
Herr/Frau Johannes Menting
036 ···
Nr. anzeigenPreise & Kosten
Provision für Käufer
3,57 inkl. MwSt.
Lage
Das Haus liegt zentral im Dorf Heubach. Der Haupteingang befindet sich in einer ruhigen Seitenstraße, aber es gibt auch einen Kellereingang an der Hauptstraße. Ein kleiner Garten an der Hauptstraße rundet das Bild ab.
Das Haus
Kategorie
Einfamilienhaus
Baujahr
1910
Bezug
ab sofort
Energie & Heizung
Warum sehe ich diese Anzeige? – Du siehst diese Anzeige basierend auf Ihrer Navigation auf unserer Website und den Suchkriterien, die du verwendet hast.
Weitere Energiedaten
Haustyp
Massivhaus
Energieträger
Elektro, Holz
Heizungsart
Ofen
Details
Objektbeschreibung
Dieses Haus is ein echtes Schnäppchen. Es verfügt über 3 bewohnbare Etagen und einen Dachboden. Das Gebäude betritt man wahlweis über den Eingang auf der Rückseite. Im EG befinden sich eine renovierte Wohnküche, ein Wohnzimmer, ein Schlafzimmer und ein Bad mit Toilette.
Im 1. Stock befinden sich ein weiteres...
Ausstattung
Gesamtwohnfläche: 130,5 m².
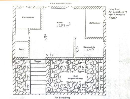
Keller mit Waschküche und Warmwasserspeicher (Elektro)
EG: Wohnzimmer/Küche, Schlafzimmer, Bad + WC mit Elektroheizkörper, Flur
1. OG: 3 Schlafzimmer mit Elektroheizung, Wohnzimmer, Toilette
2. OG: 3 Schlafzimmer mit Elektroheizung
Weitere Informationen
Sonstiges
Heubach ist ein Bergdorf im Süden des Thüringer Waldes auf 720 Metern Höhe. Heubach gehört zur Gemeinde Masserberg. Masserberg ist ein Kurort mit vielen Gesundheits- und touristischen Einrichtungen. Restaurants, Geschäfte, Wellness. Heubach ist mit dem Auto und Bus gut erreichbar. Es gibt eine Apotheke und eine...
Anbieter der Immobilie

Online-ID: 2m9st5j
Referenznummer: 225566
Finde Angebote wie dieses
Hier geht es zu unserem Impressum, den Allgemeinen Geschäftsbedingungen, den Hinweisen zum Datenschutz und nutzungsbasierter Online-Werbung.