
IAD Immobilien Agentur Deutschland GmbH
Herr Eugen Klutzny
+49 ···
Nr. anzeigenPreise & Kosten
Provision für Käufer
2,38 % Käuferprovision inkl. 19 % MwSt. Die Provision errechnet sich aus dem Kaufpreis. Weitere Informationen siehe Provisionshinweis.
Lage
Die Hansestadt Buxtehude vereint die Vorzüge einer charmanten Mittelstadt mit etwa 40.000 Einwohnern. Besonders hervorzuheben ist die malerische Altstadt, die mit ihren vielfältigen Restaurants, Cafés und Einkaufsmöglichkeiten zum Verweilen einlädt. Das angebotene Objekt liegt in der Umgebung "Grüner Wald" im Stadtteil...
Das Haus
Kategorie
Doppelhaushälfte
Baujahr
1997
Energie & Heizung
Warum sehe ich diese Anzeige? – Du siehst diese Anzeige basierend auf Ihrer Navigation auf unserer Website und den Suchkriterien, die du verwendet hast.
Energieausweistyp
Verbrauchsausweis
Gebäudetyp
Wohngebäude
Baujahr laut Energieausweis
2019
Wesentliche Energieträger
Gas
Gültigkeit
bis 28.09.2035
Effizienzklasse
C
Endenergieverbrauch
96,90 kWh/(m²·a)
Weitere Energiedaten
Energieträger
Gas
Heizungsart
Zentralheizung
Details
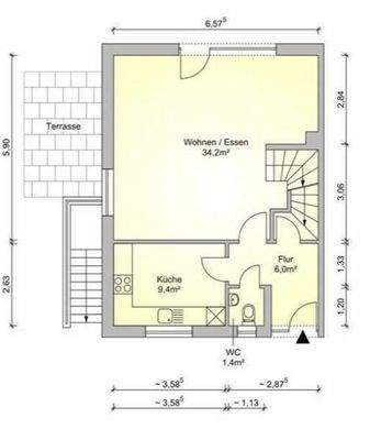
Objektbeschreibung
Diese charmante Doppelhaushälfte präsentiert sich als ideales Zuhause für Familien oder Paare, die Wert auf Platz und Komfort legen. Errichtet im Jahr 1997 auf einem großzügigen Grundstück von ca. 300 m², besticht das Objekt durch eine durchdachte Raumaufteilung. Im Erdgeschoss erwartet Sie ein lichtdurchfluteter, großzügiger...
Ausstattung
- Rollläden im Erdgeschoss
- Fußbodenheizung im Wohn- und Küchenbereich
- Kaminanschluss im Wohnzimmer
- Moderne Küchengeräte, 2013 erneuert
- Hochwertige Badezimmermöbel, darunter ein eleganter Waschtisch, Hängeschrank und Spiegelschrank
- Neuer Laminatboden im Spitzboden (2010) sowie im Wohnzimmer (2013)...
Weitere Informationen
Provisionshinweis
2,38 % Käuferprovision inkl. 19 % MwSt. Die Provision errechnet sich aus dem Kaufpreis. Für ein Exposé und weitere Informationen zum Objekt sowie einen Besichtigungstermin füllen Sie bitte die nachfolgenden Angaben im Kontaktformular aus:- vollständiger Name/Anschrift- E-Mail-Adresse-...
Anbieter der Immobilie
IAD Immobilien Agentur Deutschland GmbH
Untere Bühlstraße 5, 91338 Igensdorf
Online-ID: 2m9tj5v
Referenznummer: WL-EK0296/7
Finde Angebote wie dieses
Hier geht es zu unserem Impressum, den Allgemeinen Geschäftsbedingungen, den Hinweisen zum Datenschutz und nutzungsbasierter Online-Werbung.