

Schwechater Wohnbau GmbH
Frau Maria Leiner
+43 ···
Nr. anzeigenPreise & Kosten
Provision für Mieter
Bitte beachte, das Angebot kann bei Vertragsabschluss die Zahlung einer Provision beinhalten. Weitere Informationen erhältst Du vom Anbieter.
Warum sehe ich diese Anzeige? – Du siehst diese Anzeige basierend auf Ihrer Navigation auf unserer Website und den Suchkriterien, die du verwendet hast.
Lage
Nähe Wien, Flughafen Wien-Schwechat
Die Immobilie
Zu diesem Angebot wurden vom Anbieter keine weiteren Daten hinterlegt. Für weitere Informationen bitte den Anbieter kontaktieren.
Nach Informationen fragenDetails
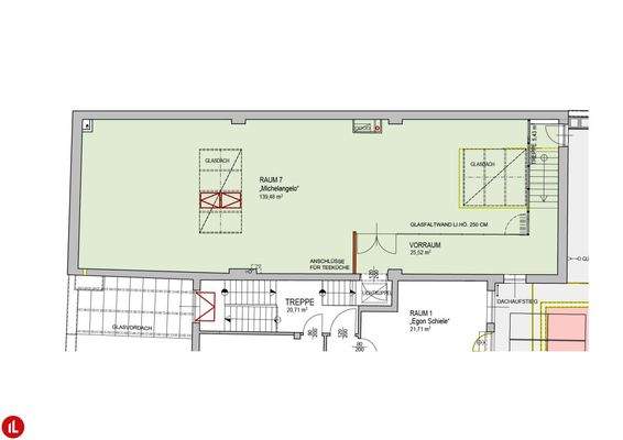
Objektbeschreibung
Zahlreiche Möglichkeiten - der richtige Raum für Ihre Ideen!
In beliebter Frequenzlage in der Wiener Straße in Schwechat finden Sie diesen großen Mehrzweckraum mit rund 140 m². Neben der Top-Lage spricht auch die optimale Infrastruktur für den Standort. Ideal für Ihren Verein, Ihr Hobby, als Atelier oder...
Weitere Informationen
Stichworte
Nutzfläche: 165,00 m², Bundesland: Niederösterreich
Anbieter der Immobilie
Schwechater Wohnbau GmbH
Himberger Straße 1, 2320 SCHWECHAT

Online-ID: 2m9ud5n
Referenznummer: OBGC20231204154107681d091b421a9
Finde Angebote wie dieses
Hier geht es zu unserem Impressum, den Allgemeinen Geschäftsbedingungen, den Hinweisen zum Datenschutz und nutzungsbasierter Online-Werbung.