
McMakler GmbH
Ihr McMakler Team
080 ···
Nr. anzeigenPreise & Kosten
Provision für Käufer
Die Provision i.H.v. 3,57 % inkl. MwSt. ist mit Kaufvertragsbeurkundung fällig, sofern der Verkaufspreis über 83.000,00 € liegt.
Liegt der Verkaufspreis dagegen bei/unter 83. Weitere Informationen siehe Provisionshinweis.
Lage
Lage: Attraktive Lage in Lindern-Garen mit guten Voraussetzungen für Selbstnutzer
Bildung und Betreuung: Mehreren Kindergärten und einigen Schulen in ca. 6 km bis ca. 9 km Entfernung
Nahversorgung: Anlaufstellen wie Supermarkt, Apotheke, Postfiliale und Bankfiliale in einem Radius von max. 6 km
Das Renditeobjekt
Baujahr
1880
Bezug
nach Absprache
Energie & Heizung
Warum sehe ich diese Anzeige? – Du siehst diese Anzeige basierend auf Ihrer Navigation auf unserer Website und den Suchkriterien, die du verwendet hast.
Energieausweistyp
Bedarfsausweis
Gebäudetyp
Wohngebäude
Baujahr laut Energieausweis
1880
Wesentliche Energieträger
Öl
Effizienzklasse
H
Endenergiebedarf
285,60 kWh/(m²·a)
Weitere Energiedaten
Energieträger
Öl
Heizungsart
Zentralheizung
Details
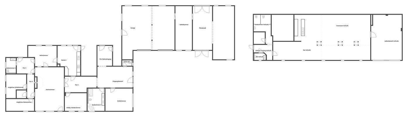
Objektbeschreibung
Objektnr: 1068160
Wenn Sie auf der Suche nach einem gemütlichen Zuhause für Ihre Familie sind, das sowohl im
Innen- als auch im Außenbereich viel Platz zum Wohlfühlen bietet, könnte dieses charmante
Objekt genau das Richtige für Sie sein. Die im Jahr 1880 erbaute Immobilie wurde stets pfleglich
behandelt und...
Ausstattung
+ Ruhig gelegen, in Mitten der Natur mit schönem Ausreitgelände
+ Die Immobilie präsentiert sich in einem gepflegten Zustand und wurde fortlaufend renoviert.
+ Solide Ausstattung mit zwei hochwertigen Bädern und einer neuwertigen Einbauküche,
inklusive Fußbodenheizung
+ Parkähnlich angelegtes Grundstück mit...
Weitere Informationen
Provisionshinweis
Die Provision i.H.v. 3,57 % inkl. MwSt. ist mit Kaufvertragsbeurkundung fällig, sofern der Verkaufspreis über 83.000,00 € liegt.
Liegt der Verkaufspreis dagegen bei/unter 83.000,00 €, ist die fest vereinbarte Mindestprovision i.H.v. mind. 5.950,00 € inkl. MwSt. mit Kaufvertragsbeurkundung fällig...
Anbieter der Immobilie
McMakler GmbH
Am Postbahnhof 17, 10243 Berlin
Online-ID: 2m9uf5u
Referenznummer: b44be60d7c
Finde Angebote wie dieses
Hier geht es zu unserem Impressum, den Allgemeinen Geschäftsbedingungen, den Hinweisen zum Datenschutz und nutzungsbasierter Online-Werbung.