

INNOPARK Kitzingen GmbH
Herr Sebastian Rüb
+49 ···
Nr. anzeigenPreise & Kosten
Kaution
2 NKM
Provision für Mieter
provisionsfrei
Warum sehe ich diese Anzeige? – Du siehst diese Anzeige basierend auf Ihrer Navigation auf unserer Website und den Suchkriterien, die du verwendet hast.
Lage
Die Büro-/Praxisflächen befinden sich im gesicherten Bereich nicht weit vom öffentlichen Campus-Bereich. Hier erwartet Sie ein inspirierendes Ambiente mit einem großzügigen Park-Charakter, der zum Verweilen und Netzwerken einlädt.
Ein besonderes Highlight ist die hauseigene Betriebskantine “Larsons Kitchen”, die...
Büro-/Praxisfläche
Kategorie
Bürofläche
Baujahr
1984
Geschoss
Erdgeschoss
Energie & Heizung
Warum sehe ich diese Anzeige? – Du siehst diese Anzeige basierend auf Ihrer Navigation auf unserer Website und den Suchkriterien, die du verwendet hast.
Wärme
Strom
Energieausweistyp
Verbrauchsausweis
Gebäudetyp
Nicht-Wohngebäude
Gültigkeit
10.12.2024 bis 10.12.2034
Endenergieverbrauch (Wärme)
100,00 kWh/(m²·a) - Warmwasser enthalten
Endenergieverbrauch (Strom)
25,00 kWh/(m²·a) - Warmwasser enthalten
Weitere Energiedaten
Energieträger
Gas
Heizungsart
Zentralheizung
Details
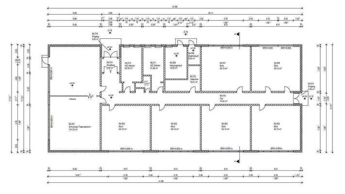
Objektbeschreibung
Die hier angebotene Mietfläche besticht durch ihre großzügige und durchdachte Raumaufteilung, die ein produktives und komfortables Arbeitsumfeld garantiert. Der aktuelle Grundriss umfasst sechs geräumige Büros, die vielseitige Nutzungsmöglichkeiten bieten. Ein besonders hervorzuhebendes Merkmal ist der äußerst großzügige...
Weitere Informationen
Besichtigungstermine
Besichtigungstermine
INNOPARK Kitzingen GmbH
Steigweg 24, 97318 Kitzingen, Germany
Phone: +49 (151) 62418825
Fax: +49 (9321) 2680 9000
mailto: info@innopark-kitzingen.de
www.innopark-kitzingen.de
Sitz/Registered office: Kitzingen, Würzburg HRB...
Dokumente
Anbieter der Immobilie
INNOPARK Kitzingen GmbH
Steigweg 24, 97318 Kitzingen

Online-ID: 2m9vl5z
Finde Angebote wie dieses
Hier geht es zu unserem Impressum, den Allgemeinen Geschäftsbedingungen, den Hinweisen zum Datenschutz und nutzungsbasierter Online-Werbung.