
ohne-makler.net - Immobilien selbst vermarkten
Privat vom Eigentümer
Kontaktiere den Anbieter schriftlich, es ist keine Telefonnummer hinterlegt.
Preise & Kosten
Provision für Käufer
provisionsfrei
Lage
In der beliebten "Emmendinger Unterstadt", liegt die Wohnung in einem ruhigen und dennoch zentralen Wohngebiet für Jung und Alt im nördlichen Teil der Kreisstadt.
Die Innenstadt sowie der Bahnhof sind fußläufig erreichbar sowie alle erforderlichen Einkaufsmöglichkeiten.
Der Wöpplinsberg mit seiner wunderbaren...
Die Wohnung
Wohnungslage
2. Geschoss
Bezug
sofort
Wohnanlage
Energie & Heizung
Warum sehe ich diese Anzeige? – Du siehst diese Anzeige basierend auf Ihrer Navigation auf unserer Website und den Suchkriterien, die du verwendet hast.
Energieausweistyp
Bedarfsausweis
Gebäudetyp
Wohngebäude
Effizienzklasse
B
Endenergiebedarf
59,00 kWh/(m²·a)
Weitere Energiedaten
Energieträger
Pellets
Heizungsart
Zentralheizung
Details
Objektbeschreibung
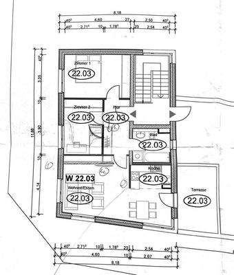
Die helle 3-Zimmer-Wohnung liegt alleinig im 2. OG und hat eine wunderschöne Dachterrasse. Sie ist hochwertig u.a. mit Parkettfußböden und einer LAN-Verkabelung ausgestattet.
Zur Wohnung gehört ein eigener, großer Keller.
Im Gemeinschaftseigentum sind ferner ein Fahrradkeller sowie ein Trockenraum enthalten. Ein...
Ausstattung
Keller, Dachterrasse, Duschbad, Parkett, Fliesen
Bemerkungen:
Die Wohnung überzeugt durch ihre durchdachte Architektur, hochwertigen Ausbau, moderne und energieeffiziente Haustechnik sowie funktionalen Zuschnitt.
- Dachterrasse
- Parkett in allen Wohnräumen
- Fenster mit 3-fach Verglasung
-...
Preisinformation
1 Tiefgaragenstellplatz, Kaufpreis: 20.000,00 EUR
Weitere Informationen
Sonstiges
Heizungsart: Zentralheizung
Energieträger: Holzpellets
Makleranfragen nicht erwünscht. Nach § 7 UWG sind unaufgeforderte Kontaktaufnahmen durch Makler ohne ausdrückliche Einwilligung des Empfängers verboten!
ohne-makler (OM) ist weder Anbieter noch Vermittler der Immobilie. OM betreibt eine...
Anbieter der Immobilie
ohne-makler.net - Immobilien selbst vermarkten
Humboldtstr. 25 A, 21509 Glinde
Privat vom Eigentümer
Dein Ansprechpartner
Kontaktiere den Anbieter schriftlich, es ist keine Telefonnummer hinterlegt.
Online-ID: 2m9wu5e
Referenznummer: 403760
Finde Angebote wie dieses
Hier geht es zu unserem Impressum, den Allgemeinen Geschäftsbedingungen, den Hinweisen zum Datenschutz und nutzungsbasierter Online-Werbung.