
Matador Immobilien GmbH
Herr Alexander Nirschl
004 ···
Nr. anzeigenPreise & Kosten
Provision für Käufer
3,57 % inkl. MwSt.
Lage
Die Immobilie befindet sich in Arrach, einem beliebten Luftkurort im Lamer Winkel, mitten im Bayerischen Wald. Die Region ist bekannt für ihre hohe Lebensqualität, vielfältige Freizeitmöglichkeiten und ganzjährigen Erholungswert.
Ob Wandern, Radfahren, Wintersport oder einfach Natur genießen - hier beginnt die Erholung...
Das Haus
Kategorie
Einfamilienhaus
Baujahr
1935
Bezug
Ab Sofort!
Energie & Heizung
Warum sehe ich diese Anzeige? – Du siehst diese Anzeige basierend auf Ihrer Navigation auf unserer Website und den Suchkriterien, die du verwendet hast.
Energieausweistyp
Bedarfsausweis
Gebäudetyp
Wohngebäude
Baujahr laut Energieausweis
1935
Wesentliche Energieträger
OEL
Gültigkeit
bis 10.12.2035
Effizienzklasse
H
Endenergiebedarf
252,17 kWh/(m²·a)
Weitere Energiedaten
Energieträger
Öl
Heizungsart
offener Kamin, Zentralheizung
Details
Objektbeschreibung
Dieses Einfamilienhaus im staatlich anerkannten Luftkurort Arrach bietet genau das, was viele suchen: Ruhe, Natur und ein solides Zuhause mit Charakter.
Das Haus wurde 1935 errichtet und über die Jahre gepflegt sowie in wesentlichen Bereichen modernisiert.
Auf rund 117 m² Wohnfläche verteilen sich insgesamt 6 Zimmer...
Ausstattung
Dieses Einfamilienhaus wurde im Jahr 1935 errichtet und im Jahr 1950 um zwei weitere Räume erweitert. Es steht auf einem ca. 458 m² großen Grundstück.
Die Immobilie befindet sich in einem renovierungsbedürftigen Zustand und bietet viel Potenzial, mit Liebe und handwerklichem Einsatz wieder zu einem schönen Zuhause...
Preisinformation
1 Garagenstellplatz
Weitere Informationen
Sonstiges
Fenster erneuert 1991
Heizleitungen erneuert 1992
Heizungsanlage erneuert 2020
Stichworte
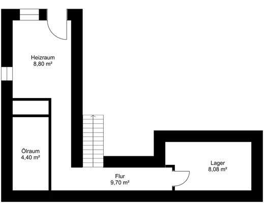
Nutzfläche: 30,98 m², Anzahl der Schlafzimmer: 3, Anzahl der Badezimmer: 2, 3 Etagen
Anbieter der Immobilie
Online-ID: 2m9zl5p
Referenznummer: 25-111
Finde Angebote wie dieses
Hier geht es zu unserem Impressum, den Allgemeinen Geschäftsbedingungen, den Hinweisen zum Datenschutz und nutzungsbasierter Online-Werbung.