
LEIPZIG estate Ihr Immobilienexperte Tews, Ohnesorge, Kupferschmied, Anscheit GbR
Frau Carolin Slowikowski
004 ···
Nr. anzeigenPreise & Kosten
Kaution
2.250,00
Warum sehe ich diese Anzeige? – Du siehst diese Anzeige basierend auf Ihrer Navigation auf unserer Website und den Suchkriterien, die du verwendet hast.
Lage
Stötteritz ist mit seiner guten Erreichbarkeit der Innenstadt und der Nähe zum Völkerschlachtdenkmal ein attraktiver Stadtteil. In unmittelbarer Nähe befinden sich auch die Unikliniken. Das Haus befindet sich in einer ruhigen Seitenstraße in direkter Lauflage zum Stötteritzer Wäldchen. Die Anbindung an das öffentliche...
Die Wohnung
Wohnungslage
Dachgeschoss
Bezug
sofort
Wohnanlage
Energie & Heizung
Warum sehe ich diese Anzeige? – Du siehst diese Anzeige basierend auf Ihrer Navigation auf unserer Website und den Suchkriterien, die du verwendet hast.
Energieausweis: für diesen Gebäudetyp nicht notwendig
Weitere Energiedaten
Energieträger
Gas
Heizungsart
Etagenheizung
Details
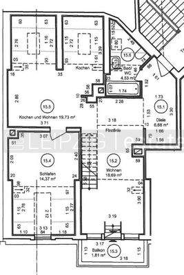
Objektbeschreibung
Besondere Dachgeschosswohnung mit Galeriebereich und Balkon.
Schöne helle Zimmer.
3 Räume mit Echtholzparkett im sanierten Altbau. Die Wohnung verfügt über einen sehr offen gestalteten Wohn- Koch und Essbereich, über die Treppe gelangt man in das 2 Zimmer dies ist offen (Galeriebereich). Ein separates Zimmer...
Ausstattung
- Galeriebereich
- 3 Räume
- Balkon
- Parkett
- Tageslichtbad mit Wanne
- offene Küche
- Keller
- sehr liebevolle Nachbarschaft
Weitere Informationen
Sonstiges
Alle Angaben zum Objekt und dem Mietpreis, sowie Größen der Wohnungen beruhen auf den Angaben des Eigentümers. Für die Richtigkeit übernehmen wir keine Gewährleistung.
Weitere Objekte finden Sie unter www.leipzig-estate.de
Stichworte
Anzahl Balkone: 1, Bundesland: Sachsen, 5 Etagen, Wohnungsnr....
Anbieter der Immobilie
LEIPZIG estate Ihr Immobilienexperte Tews, Ohnesorge, Kupferschmied, Anscheit GbR
Waldstr.55, 04105 Leipzig
Online-ID: 2m9zv5l
Referenznummer: CSRH18-DGre
Finde Angebote wie dieses
Hier geht es zu unserem Impressum, den Allgemeinen Geschäftsbedingungen, den Hinweisen zum Datenschutz und nutzungsbasierter Online-Werbung.