
Jones Lang LaSalle SE Landlord Representation
Frau Carla Siegelin
+49 ···
Nr. anzeigenPreise & Kosten
Provision für Mieter
provisionsfrei
Warum sehe ich diese Anzeige? – Du siehst diese Anzeige basierend auf Ihrer Navigation auf unserer Website und den Suchkriterien, die du verwendet hast.
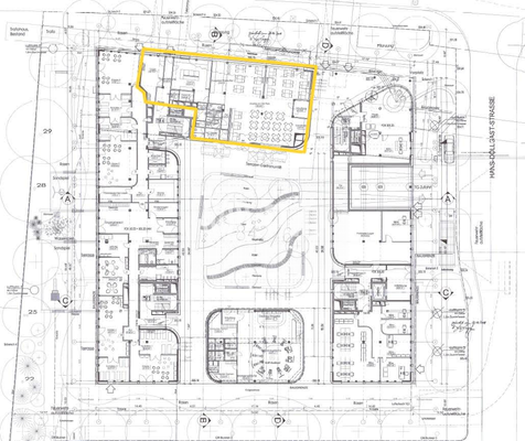
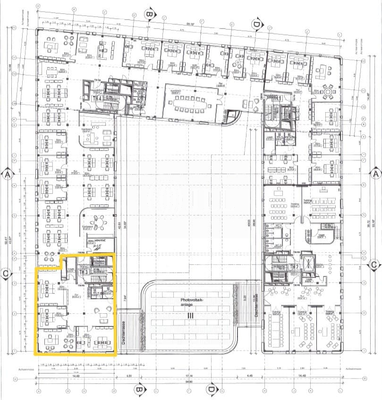
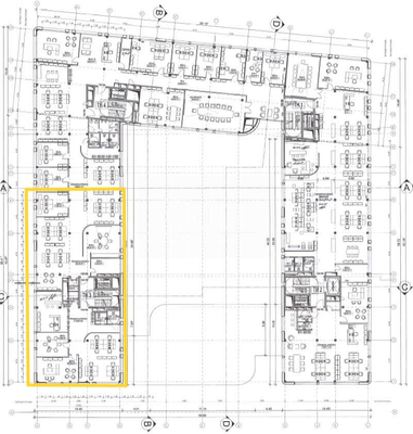
Lage
Das NuOffice I liegt angrenzend im nördlichen Teil der Parkstadt Schwabing. In wenigen Minuten erreicht man mit dem Auto die Münchner Innenstadt. Hotels sowie ein großes Einkaufscenter mit allen Geschäften des täglichen Bedarfs sin in unmittelbarer Nähe zu finden.
Büro-/Praxisfläche
Kategorie
Bürofläche
Baujahr
2011
Bezug
Sofort
Energie & Heizung
Warum sehe ich diese Anzeige? – Du siehst diese Anzeige basierend auf Ihrer Navigation auf unserer Website und den Suchkriterien, die du verwendet hast.
Wärme
Strom
Energieausweistyp
Verbrauchsausweis
Gebäudetyp
Nicht-Wohngebäude
Gültigkeit
06.07.2021 bis 05.07.2031
Endenergieverbrauch (Wärme)
42,50 kWh/(m²·a)
Endenergieverbrauch (Strom)
24,60 kWh/(m²·a)
Details
Objektbeschreibung
Der moderne NuOffice Komplex besteht aus drei Bauabschnitten, welches in Zusammenarbeit mit dem Fraunhofer Institut und der TU München realisiert wurde. Das NuOffice I wurde 2014 fertiggestellt. Alle drei Bauteile haben eine in Holzoptik verkleidete Fassade und einen attraktiven Innenhof. Die Büroimmobile zeichnet sich durch...
Ausstattung
- ruhige und begrünte Innenhöfe
- repräsentative Eingangshallen
- stillvolle Beleuchtung
- flexible Raumaufteilung
- CAT-Verkabelung kann übernommen werden
Preisinformation
32 Stellplätze
Weitere Informationen
Stichworte
Gesamtfläche: 3.015,62 m²
Anbieter der Immobilie
Jones Lang LaSalle SE Landlord Representation
Bockenheimer Landstr. 55, 60325 Frankfurt am Main
Online-ID: 2ma2l5m
Referenznummer: 4@of69772@14@0
Finde Angebote wie dieses
Hier geht es zu unserem Impressum, den Allgemeinen Geschäftsbedingungen, den Hinweisen zum Datenschutz und nutzungsbasierter Online-Werbung.