Adonia Relaitätenvermittlung GmbH

Herr Benjamin Marinkovic

++PROVISIONSFREI++ Hochwertiger 2-Zimmer Neubau-ZWEITBEZUG mit Terrasse/Garten

€ 999,11
Gesamtmiete
53 m²
Wohnfläche ca.
2
Zimmer

Der Anbieter dieses Objekts hat gegenüber der AVIV Germany GmbH als Betreiber dieses Online-Marktplatzes erklärt, nicht als Unternehmer im Sinne des § 1 KSchG zu handeln. Die im Verbraucherschutzrecht der Union verankerten Verbraucherrechte (insbesondere Informationspflichten und Rücktritts- bzw. Widerrufsrechte) finden auf den Vertrag zwischen dem Anbieter des Objekts und Ihnen (dem Interessenten) keine Anwendung.

Gewerblicher Anbieter

Der Anbieter dieses Objekts hat gegenüber der AVIV Germany GmbH als Betreiber dieses Online-Marktplatzes erklärt, als Unternehmer im Sinne des § 1 KSchG zu handeln.

AdresseLaaer-Berg-Straße 110
1100 Wien 
(Favoriten)
Auf Karte ansehen

Preise & Kosten

Gesamtmiete € 999,11 Nettokaltmiete

zzgl. Betriebskosten

€ 908,28

Kaution

3 Bruttomonatsmieten

Provision für Mieter

Gemäß Erstauftraggeberprinzip bezahlt der Abgeber die Provision.

Lage

U1 Station "Altes Landgut", Laaer Berg

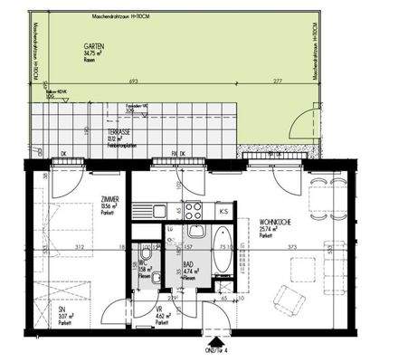
Die Wohnung

Wohnungslage

Erdgeschoss

Bezug

sofort

  • Terrasse
  • Einbauküche
  • barrierefrei
  • Böden: Fliesenboden, Parkett
  • Weitere Räume: Wasch-Trockenraum

Wohnanlage

  • Baujahr: 2021
  • Zustand: Neubau
  • Personenaufzug

Energie & Heizung

Heizwärmebedarf (HWB)

23,00 kWh/(m²·a)

Gesamtenergieeffizienz (fGEE)

0,89

Details

Objektbeschreibung

Zur befristeten Vermietung gelangt diese toll aufgeteilte und hochwertig ausgestattete ca. 53 m² große Neubauwohnung mit Terrasse und Garten im Erdgeschoss eines Neubaus in toller Lage des 10. Wiener Gemeindebezirk, Am Laaer Berg in unmittelbarer Umgebung zu Wald &...

Mehr anzeigen

Preisinformation


Abwicklungshonorar EUR 108,- netto zzgl. 20% USt
Alle Preise sind zzgl. MWST., Nettokaltmiete: 908,28 EUR

Weitere Informationen

Stichworte
Tiefgarage vorhanden, Fahrradraum, Anzahl der Badezimmer: 1, Anzahl der separaten WCs: 1, Anzahl Terrassen: 1, Balkon-Terrassen-Fläche: 13,00 m², Gartenfläche: 35,00 m², Kellerfläche: 1,50 m², Bundesland: Wien, 7 Etagen, Wohnungsnr.: 4

Anbieter der Immobilie

Partner

Adonia Relaitätenvermittlung GmbH

im Durchschnitt  1,20  Sterne
(bei 1 Bewertungen)

Hohenstaufengasse 9/2, 1010 WIEN

user

Herr Benjamin Marinkovic

Dein Ansprechpartner

Anbieter-Website Anbieter-Profil Anbieter-Impressum

Online-ID: 2ma4q5z

Referenznummer: OBGC202601091321445224a74901cdf

Finde Angebote wie dieses

imageimageimage

Hier geht es zu unserem Impressum, den Allgemeinen Geschäftsbedingungen, den Hinweisen zum Datenschutz und nutzungsbasierter Online-Werbung.