
Robert C. Spies Immobilien GmbH & Co. KG Oldenburg
Herr Jan Hillenbrand
+49 ···
Nr. anzeigenPreise & Kosten
zzgl. Nebenkosten
Kaution
3 MNKM
Provision für Mieter
Provisionspflichtig für den Mieter.
Unsere Objektangaben basieren auf den uns erteilten Informationen. Eine Haftung für die Richtigkeit und Vollständigkeit können wir deshalb nicht übernehmen.
Warum sehe ich diese Anzeige? – Du siehst diese Anzeige basierend auf Ihrer Navigation auf unserer Website und den Suchkriterien, die du verwendet hast.
Lage
Das Objekt befindet sich in einem Gewerbegebiet, das speziell auf Büroräume und technologieorientierte Unternehmen ausgerichtet ist. Der Standort liegt im Stadtteil Wechloy in direkter Nähe zur Carl von Ossietzky Universität Oldenburg, was ihn zu einem gefragten Umfeld für Forschung, Entwicklung und innovative Unternehmen...
Büro-/Praxisfläche
Kategorie
Bürofläche
Baujahr
2014
Energie & Heizung
Warum sehe ich diese Anzeige? – Du siehst diese Anzeige basierend auf Ihrer Navigation auf unserer Website und den Suchkriterien, die du verwendet hast.
Wärme
Energieausweistyp
Verbrauchsausweis
Gebäudetyp
Nicht-Wohngebäude
Baujahr laut Energieausweis
2014
Wesentliche Energieträger
Solar, Blockheizkraftwerk
Gültigkeit
16.10.2023 bis 25.11.2034
Endenergieverbrauch (Wärme)
89,00 kWh/(m²·a) - Warmwasser enthalten
Details
Objektbeschreibung
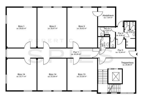
Die hier offerierte Bürofläche bildet den rechten Flügel des dritten Obergeschosses innerhalb eines im Jahre 2014 errichteten Gebäudes.
Das Gebäude liegt im Geltungsbereich des Bebauungsplans 796, welcher folgende Nutzungen zulässt:
- universitäre Einrichtungen
- Institute und Betriebe aus den Bereichen Forschung...
Ausstattung
Das gesamte Gebäude besticht durch einen modernen und einwandfreien Zustand.
Die Fläche ist barrierefrei über das gemeinsame Treppenhaus inkl. Fahrstuhl zu erschließen.
Ein gesicherter Zugang wird über ein Transpondersystem gewährleistet.
Die Verteilung eines EDV-Systems liegt in Form von Kabelkanälen vor.
Der...
Preisinformation
5 Stellplätze, Miete je: 50,00 EUR
Weitere Informationen
Sonstiges
Laufzeit Mietvertrag
Es wird ein langfristiger Mietvertrag von 10 Jahren Laufzeit angestrebt.
Mietsteigerungen
alle 3 Jahre a 5%
Mietbeginn
Die Flächen können nach Absprache und ab 02/26 bezogen werden.
Anbieter der Immobilie
Online-ID: 2ma6e57
Referenznummer: 32032/2
Finde Angebote wie dieses
Hier geht es zu unserem Impressum, den Allgemeinen Geschäftsbedingungen, den Hinweisen zum Datenschutz und nutzungsbasierter Online-Werbung.