

Darna Immobilien GmbH
Mr. Sharif Altwal
030 ···
Nr. anzeigenPreise & Kosten
Provision für Käufer
Nach Abschluss eines notariellen Kaufvertrages wird vom Käufer eine Vermittlungsprovision in Höhe von 3,57 % des Kaufpreises inkl. Mehrwertsteuer fällig.
Lage
Gutbürgerliche und ruhige Wohnlage in einem der schönsten Bezirke Berlins. Viele wunderschöne Altbauten sind noch in Friedenau vorhanden und laden zum Spazieren und Schlendern ein.
In unmittelbarer Umgebung findet man sämtliche Einkaufsmöglichkeiten für den täglichen Bedarf.
Innerhalb von 5 min spaziert man...
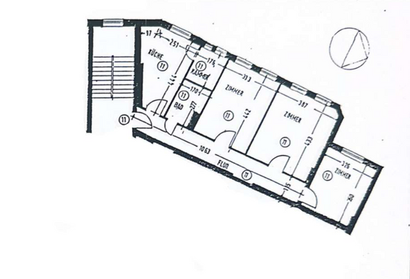
Die Wohnung
Wohnungslage
Erdgeschoss
Bezug
sofort
Derzeitige Nutzung
frei
Wohnanlage
Energie & Heizung
Warum sehe ich diese Anzeige? – Du siehst diese Anzeige basierend auf Ihrer Navigation auf unserer Website und den Suchkriterien, die du verwendet hast.
Energieausweistyp
Verbrauchsausweis
Gebäudetyp
Wohngebäude
Baujahr laut Energieausweis
1910
Wesentliche Energieträger
Erdgas
Gültigkeit
16.10.2013 bis 26.05.2029
Effizienzklasse
D
Endenergieverbrauch
117,00 kWh/(m²·a)
Weitere Energiedaten
Energieträger
Gas
Heizungsart
Etagenheizung
Details
Objektbeschreibung
Diese ansprechende 3-Zimmer-Wohnung vereint klassischen Altbaucharme mit praktischen
Grundrisslösungen und stellt eine seltene Gelegenheit dar. Sie befindet sich im ruhigen Seitenflügel eines
äußerst gepflegten Altbaus im beliebten Berliner Stadtteil Friedenau.
Die Wohnung wurde stets vom Eigentümer selbst...
Ausstattung
- Charmante Altbauwohnung mit hohen Decken
- Gas-Etagenheizung von 10/2011, Warmwasser über Durchlauferhitzer
- Zwei separate Schlafzimmer
- Geräumiges Wohnzimmer
- Altbau-typischer Dielenboden
- Gesamt Kunststoff-Isolierfenster mit Sicherheitsglas
- Wannenbad mit Fenster
- Kammer
- Kellerraum...
Weitere Informationen
· Besichtigungstermine ·
Bitte teilen Sie uns Ihr Interesse über das Kontaktformular oder per E-Mail mit einer kurzen Vorstellung mit, damit wir Ihnen das Exposé und Terminvorschläge zusenden können. Es finden ausschließlich persönliche Besichtigungstermine statt.
Bitte beachten Sie:
Alle Angaben...
Anbieter der Immobilie

Online-ID: 2ma6g5w
Referenznummer: ODENWALD
Finde Angebote wie dieses
Hier geht es zu unserem Impressum, den Allgemeinen Geschäftsbedingungen, den Hinweisen zum Datenschutz und nutzungsbasierter Online-Werbung.