

Siegmann Invest GmbH
Frau Stephanie Ehrt
015 ···
Nr. anzeigenPreise & Kosten
Kaution
2.250,00 €
Warum sehe ich diese Anzeige? – Du siehst diese Anzeige basierend auf Ihrer Navigation auf unserer Website und den Suchkriterien, die du verwendet hast.
Lage
Die Wohnung befindet sich in zentraler und dennoch ruhiger Lage von Brand-Erbisdorf, im Wohngebiet Zugspitze. Die Umgebung ist hervorragend für Familien geeignet und überzeugt durch eine optimale Infrastruktur.
Fußläufig erreichbar sind:
-Grundschulen und Kindergärten
-Einkaufsmöglichkeiten für den täglichen...
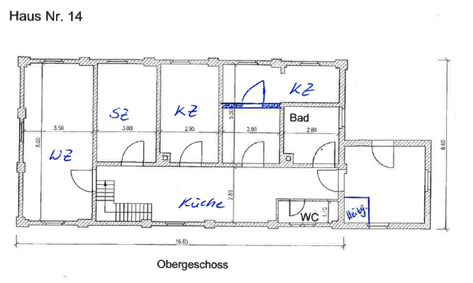
Die Wohnung
Wohnungslage
1. Geschoss (Dachgeschoss)
Bezug
01.02.2026
Wohnanlage
Energie & Heizung
Warum sehe ich diese Anzeige? – Du siehst diese Anzeige basierend auf Ihrer Navigation auf unserer Website und den Suchkriterien, die du verwendet hast.
Energieausweis: für diesen Gebäudetyp nicht notwendig
Weitere Energiedaten
Energieträger
Gas
Heizungsart
Zentralheizung
Details
Objektbeschreibung
In einem liebevoll erhaltenen, denkmalgeschützten Zweifamilienhaus steht diese einzigartige 4-Raumwohnung im Obergeschoss zur Vermietung. Die Wohnung überzeugt durch ihren großzügigen Grundriss, viel Tageslicht und eine idyllische Lage.
Bereits im Eingangsbereich empfängt Sie ein separater Vorraum. Von dort aus...
Ausstattung
Die Wohnung wird derzeit vollständig renoviert. Der neue Bodenbelag wird mit hochwertigem Klick-Vinyl ausgestattet – die Optik können Sie selbst mitbestimmen, sodass die Gestaltung ganz Ihrem Geschmack entspricht.
Weitere Informationen
Die Wohnung ist nach Vereinbarung bezugsfertig. Bei Interesse oder Fragen melden Sie sich gerne – wir freuen uns auf Ihre Anfrage!
Anbieter der Immobilie
Siegmann Invest GmbH
Max-Josef-Metzger-Straße 7, 79111 Freiburg im Breisgau

Online-ID: 2ma6l5f
Referenznummer: 008
Finde Angebote wie dieses
Hier geht es zu unserem Impressum, den Allgemeinen Geschäftsbedingungen, den Hinweisen zum Datenschutz und nutzungsbasierter Online-Werbung.