

RE/MAX Gruppe PI
Herr Thomas Jank
+43 ···
Nr. anzeigenPreise & Kosten
Provision für Käufer
3.00 % zzgl. MwSt.
Gastronomie/Hotel
Kategorie
Hotel
Energie & Heizung
Warum sehe ich diese Anzeige? – Du siehst diese Anzeige basierend auf Ihrer Navigation auf unserer Website und den Suchkriterien, die du verwendet hast.
Heizwärmebedarf (HWB)
99,00 kWh/(m²·a)
Details
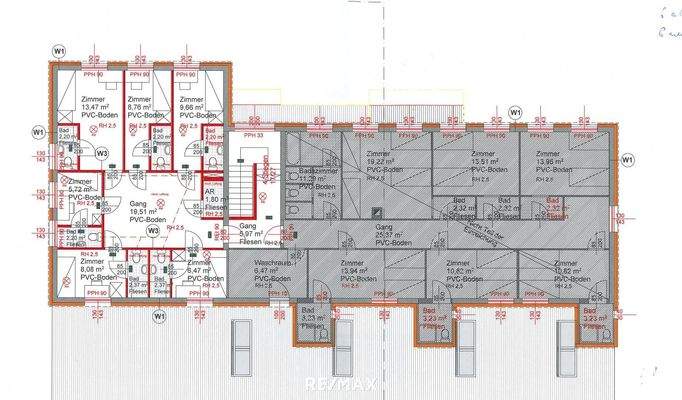
Objektbeschreibung
Anlageobjekt mit Nutzung Gewerbe/Büro/Wohnen/Gastronomie/Fremdenzimmer zur Fertigstellung
Das Objekt in Siegendorf in unmittelbarer Nähe zur burgenländischen Landeshauptstadt und zum ungarischen Sopron mit 60.000 Einwohnern liegt verkehrs- und infrastrukturtechnisch sehr gut gelegen. Dies ist eine einmalige Gelegenheit...
Preisinformation
Nettorendite Ist in %: 0,62
Weitere Informationen
Sonstiges
360° Tour - https://360.remax.at/player/w14g4/de
Stichworte
Nutzfläche: 790,00 m², Bundesland: Burgenland, Stadtzentrumslage
Gastronomie/Hotel: Bar
Anbieter der Immobilie
RE/MAX Gruppe PI
Hauptplatz 20a, 7100 NEUSIEDL AM SEE

Online-ID: 2ma6s5f
Referenznummer: 2275/7515
Finde Angebote wie dieses
Hier geht es zu unserem Impressum, den Allgemeinen Geschäftsbedingungen, den Hinweisen zum Datenschutz und nutzungsbasierter Online-Werbung.