
Hermann Schmid Immobilien GmbH
Herr Hermann Schmid
Kontaktiere den Anbieter schriftlich, es ist keine Telefonnummer hinterlegt.
Preise & Kosten
Provision für Käufer
3,57 % vom Kaufpreis incl. 19% ges. MwSt.
Lage
Der Bauernhof befindet sich in einer Weilerlage Nähe Obergünzburg am Rande des Ostallgäu´s.
Im Gemeidegebiet ist alles für den täglichen Bedarf wie Einkaufsmöglichkeiten, Kindergarten, Schulen, eine Vielzahl von Vereinen und auch div. Freizeitaktivitäten wie z. B. Crescentia-Pilgerweg vorhanden.
Land-/Forstwirtschaft
Energie & Heizung
Warum sehe ich diese Anzeige? – Du siehst diese Anzeige basierend auf Ihrer Navigation auf unserer Website und den Suchkriterien, die du verwendet hast.
Energieausweistyp
Bedarfsausweis
Gebäudetyp
Wohngebäude
Baujahr laut Energieausweis
1975
Wesentliche Energieträger
Holz
Gültigkeit
17.09.2025 bis 16.09.2035
Effizienzklasse
G
Endenergiebedarf
232,18 kWh/(m²·a)
Weitere Energiedaten
Energieträger
Holz
Details
Objektbeschreibung
Der vielseitige Bauernhof besteht aus:
- Wohnhaus mit 2 Wohnungen, voll unterkellert, PV-Anlage
- moderner Laufstall
- Maschinenhalle mit PV-Anlage
- Fahrsilo
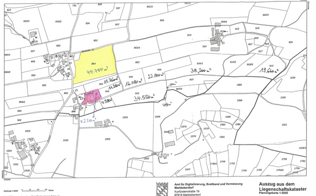
- Güllegrube
(im Lageplan rot gekennzeichnet)
Ca. 4,4 ha Grünland (im Lageplan gelb gekennzeicht) können noch zusätzlich erworben...
Weitere Informationen
Sonstiges
Wir bitten um Verständnis, dass nur Anfragen mit kompletter Anschrift und Telefonnummer bearbeitet werden können.
Alle Angaben sind nach bestem Wissen und Gewissen gemacht. Irrtum und Zwischenverkauf vorbehalten. Der Makler haftet nicht für Irrtümer oder Schriftfehler.
Besichtigungstermine
Nach...
Anbieter der Immobilie
Hermann Schmid Immobilien GmbH
Hauptstraße 16, 87778 Stetten
Herr Hermann Schmid
Dein Ansprechpartner
Kontaktiere den Anbieter schriftlich, es ist keine Telefonnummer hinterlegt.
Online-ID: 2ma7259
Referenznummer: 2708b
Finde Angebote wie dieses
Hier geht es zu unserem Impressum, den Allgemeinen Geschäftsbedingungen, den Hinweisen zum Datenschutz und nutzungsbasierter Online-Werbung.