
McMakler GmbH
Ihr McMakler Team
080 ···
Nr. anzeigenPreise & Kosten
Provision für Käufer
Die Provision i.H.v. 3,57 % inkl. MwSt. ist mit Kaufvertragsbeurkundung fällig, sofern der Verkaufspreis über 83.000,00 € liegt.
Liegt der Verkaufspreis dagegen bei/unter 83. Weitere Informationen siehe Provisionshinweis.
Lage
Lage: Ruhige Feldrandlage in einer kaum befahrenen Einbahnstraße, 20 min bis Stralsund
Bildung und Betreuung: Familienfreundliche Lage dank Kindergarten und Schule in fußläufiger Entfernung
Nahversorgung: Supermarkt, Apotheke, Postfiliale und Bankfiliale fußläufig im Ort
Anbindung: Bahnhof an der Strecke Rostock -...
Das Renditeobjekt
Baujahr
1978
Bezug
ab sofort
Energie & Heizung
Warum sehe ich diese Anzeige? – Du siehst diese Anzeige basierend auf Ihrer Navigation auf unserer Website und den Suchkriterien, die du verwendet hast.
Energieausweistyp
Bedarfsausweis
Gebäudetyp
Wohngebäude
Baujahr laut Energieausweis
1978
Wesentliche Energieträger
Öl,Pelletheizung
Effizienzklasse
E
Endenergiebedarf
154,00 kWh/(m²·a)
Weitere Energiedaten
Energieträger
Öl, Pellets
Heizungsart
Zentralheizung
Details
Objektbeschreibung
Objektnr: 1067506
Dieses Haus ist wirklich etwas Besonderes. Muss hier einiges getan werden? Auf jeden Fall. Der Zahn der Zeit hat sichtbar genagt: Ruß zeichnet die Feuerstelle, der Efeu hat seine Spuren in der Fassade hinterlassen und der generelle Eindruck wirkt etwas aus der Zeit gefallen.
Aber selten sieht...
Ausstattung
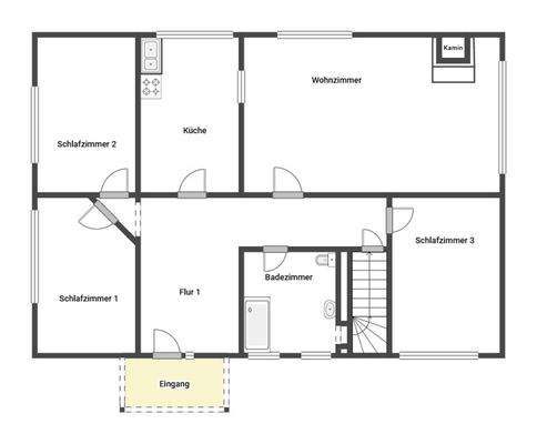
+ 6 Zimmer, 2 Badezimmer auf ca. 183 m² Wohnfläche
+ Entspannung pur dank Sauna, Kamin und Blick hinab in die Natur
+ Renovierungsbedürftiger Zustand
+ Ruhiger Garten mit Obstbäumen
+ Aufteilung des Hauses ermöglicht auch eine Nutzung als 2 separate Wohneinheiten
Weitere Informationen
Provisionshinweis
Die Provision i.H.v. 3,57 % inkl. MwSt. ist mit Kaufvertragsbeurkundung fällig, sofern der Verkaufspreis über 83.000,00 € liegt.
Liegt der Verkaufspreis dagegen bei/unter 83.000,00 €, ist die fest vereinbarte Mindestprovision i.H.v. mind. 5.950,00 € inkl. MwSt. mit Kaufvertragsbeurkundung fällig...
Anbieter der Immobilie
McMakler GmbH
Am Postbahnhof 17, 10243 Berlin
Online-ID: 2ma895v
Referenznummer: 23b71bfca2
Finde Angebote wie dieses
Hier geht es zu unserem Impressum, den Allgemeinen Geschäftsbedingungen, den Hinweisen zum Datenschutz und nutzungsbasierter Online-Werbung.