
Trommer Immobilien
Herr Michael Trommer
034 ···
Nr. anzeigenPreise & Kosten
Provision für Käufer
3 % zzgl. MwSt.
Es besteht ein Maklerauftrag mit dem Verkäufer, mit Vereinbarung einer Maklerprovision in gleicher Höhe. (BGB §656c)
Lage
Neuposa, ein Ortsteil der Gemeinde Starkenberg, liegt ca. 13 km von Altenburg in Richtung Gera/Zeitz und ca. 5 km von Meuselwitz entfernt. Die Siedlung entstand erst im Jahre 1920 auf Grund Wohnungsknappheit durch den Braunkohlebergbau. Nur wenige hundert Meter entfernt, beginnt die Leipziger Tieflandbucht mit der südlichen...
Das Haus
Kategorie
Doppelhaushälfte
Bezug
sofort
Energie & Heizung
Warum sehe ich diese Anzeige? – Du siehst diese Anzeige basierend auf Ihrer Navigation auf unserer Website und den Suchkriterien, die du verwendet hast.
Energieausweistyp
Bedarfsausweis
Gebäudetyp
Wohngebäude
Baujahr laut Energieausweis
1936
Wesentliche Energieträger
Öl
Gültigkeit
17.07.2025 bis 16.07.2035
Effizienzklasse
G
Endenergiebedarf
229,82 kWh/(m²·a)
Weitere Energiedaten
Haustyp
Massivhaus, Minergie zertifiziert
Energieträger
Öl
Heizungsart
Zentralheizung
Details
Objektbeschreibung
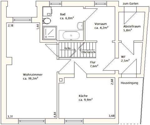
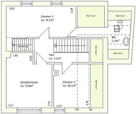
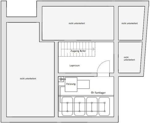
Das Baujahr des Hauses, um 1930, ist nicht genau bekannt. Der Bau der Siedlung hat 1920 begonnen und ist somit eine der jüngsten Siedlungen Deutschlands. Bei diesem Haus handelt es sich um ein arttypisches Doppelhaus, im Giebel geteilt, mit ausgebautem Dachgeschoss und einem kleinen Teilkeller. Der Zugang erfolgt von der...
Ausstattung
Das Erd- und Dachgeschoss bestehen aus 36cm starkem Massivmauerwerk. Die Innenwände sind aus 12cm starken Mauerziegeln. Unter dem Flur und der Küche befindet sich der Teilkeller, in dem die Öl-Heizung und das Tanklager untergebracht sind. Die Grundsubstanz des Hauses ist sehr solide. Die Haustechnik wurde ab 1993 Modernisiert...
Weitere Informationen
Sonstiges
Das angegebene Baujahr des Hauses kann auf Grund fehlender Unterlagen abweichen. Alle im Exposé angegebenen Daten, Maße, Preise etc. erfolgen auf Vorlage und Aussage der Verkäufer. Eine Haftung für deren Vollständig- und Richtigkeit wird ausgeschlossen. Die Grundrisse im Exposé dienen nur zur Orientierung der...
Anbieter der Immobilie
Trommer Immobilien
Moritzstr. 4, 04600 Altenburg

Online-ID: 2ma9a56
Referenznummer: 0236
Finde Angebote wie dieses
Hier geht es zu unserem Impressum, den Allgemeinen Geschäftsbedingungen, den Hinweisen zum Datenschutz und nutzungsbasierter Online-Werbung.