
RE/MAX Lörrach, Müllheim, Freiburg
Herr Dr. Jörg Thalmann
004 ···
Nr. anzeigenPreise & Kosten
Provision für Käufer
3,57 % inkl. gesetzl. MwSt. (19%) inkl. MwSt.
Lage
Dieses charmante Doppelhaushälfte befindet sich in einer der begehrtesten Wohngegenden von Freiburg, im grünen Stadtteil Hochdorf. Die Umgebung zeichnet sich durch eine harmonische Mischung aus städtischem Komfort und ländlichem Flair aus. Einrichtungen des täglichen Bedarfs, medizinische Einrichtungen...
Das Haus
Kategorie
Doppelhaushälfte
Baujahr
1978
Energie & Heizung
Warum sehe ich diese Anzeige? – Du siehst diese Anzeige basierend auf Ihrer Navigation auf unserer Website und den Suchkriterien, die du verwendet hast.
Weitere Energiedaten
Energieträger
Gas
Details
Objektbeschreibung
Zum Kauf steht eine charmante Doppelhaushälfte in der lebenswerten Stadt Freiburg, die im Jahr 1978 erbaut wurde. Die Immobilie hebt sich durch eine großzügige Grundstücksgröße von 262 m² hervor und bietet mit einer Wohnfläche von 100 m², sowie einer zusätzlichen Nutzfläche von ebenfalls 100 m² vielfältige...
Ausstattung
Ausbaureserve im Dachgeschoss
Preisinformation
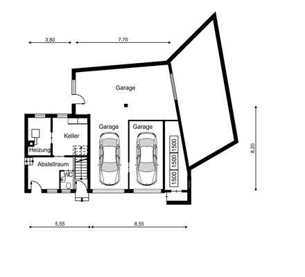
2 Garagenstellplätze
Weitere Informationen
Sonstiges
Kontaktieren Sie uns noch heute, um weitere Informationen zu erhalten oder einen Besichtigungstermin zu vereinbaren.
Kaufnebenkosten
- 5% Grunderwerbssteuer
- ca. 1,5 % Notarkosten/ Grundbuch
- 3,57 % Käuferprovision (inkl. 19% MwSt.)
Stichworte
Garage vorhanden, Nutzfläche: 100,00 m²...
Anbieter der Immobilie
RE/MAX Lörrach, Müllheim, Freiburg
Tumringer Straße 284, 79539 Lörrach
Online-ID: 2maaq52
Referenznummer: 1067-392-1-JT
Finde Angebote wie dieses
Hier geht es zu unserem Impressum, den Allgemeinen Geschäftsbedingungen, den Hinweisen zum Datenschutz und nutzungsbasierter Online-Werbung.