

Kleemann & Böhnhardt Verwaltungs GmbH
Frau Schröter-Gast
015 ···
Nr. anzeigenPreise & Kosten
Kaution
1.840,00
Warum sehe ich diese Anzeige? – Du siehst diese Anzeige basierend auf Ihrer Navigation auf unserer Website und den Suchkriterien, die du verwendet hast.
Lage
Die Wohnung befindet sich in zentraler Lage im historischen Altstadtkern von Nordhausen, direkt an der alten Stadtmauer. Die Dr.-Külz-Straße ist ruhig gelegen und dennoch nur wenige Schritte von Gastronomie, Einzelhandel, Ärzten und Kultur entfernt.
Haltestellen des öffentlichen Nahverkehrs sind in rund 5 Gehminuten...
Die Wohnung
Kategorie
Apartment
Wohnungslage
1. Geschoss (Erdgeschoss)
Bezug
2022
Wohnanlage
Energie & Heizung
Warum sehe ich diese Anzeige? – Du siehst diese Anzeige basierend auf Ihrer Navigation auf unserer Website und den Suchkriterien, die du verwendet hast.
Weitere Energiedaten
Energieträger
Gas
Heizungsart
Fußbodenheizung, Zentralheizung
Details
Objektbeschreibung
Die Liegenschaft Dr.-Külz-Straße 3 in Nordhausen ist ein denkmalgeschütztes, dreiflügeliges Gebäude mit KfW-Effizienzstandard. Als Teil eines historischen Ritterguts aus dem 18. Jahrhundert wurde das Ensemble in den Jahren 1877–1881 im Stil des Neobarock umgestaltet. Zwischen 2019 und 2021 erfolgte eine umfassende Sanierung...
Weitere Informationen
Wohnungs- und Raumaufteilung
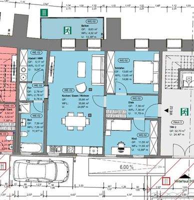
Diese stilvoll gestaltete 3-Raum-Wohnung mit 87,88?m² Wohnfläche befindet sich im mittleren Teil des ruhigen Hinterhauses – abgeschirmt vom Straßenverkehr und dennoch zentral in der Altstadt gelegen.
Die Wohnung besticht durch ihren großzügigen Schnitt hochwertige Ausstattungsdetails...
Anbieter der Immobilie
Kleemann & Böhnhardt Verwaltungs GmbH
Bahnhofstr. 20a, 99734 Nordhausen

Online-ID: 2mabh5r
Finde Angebote wie dieses
Hier geht es zu unserem Impressum, den Allgemeinen Geschäftsbedingungen, den Hinweisen zum Datenschutz und nutzungsbasierter Online-Werbung.