Eck & Company Immobilien GmbH

Petra Schoppmann

Geldern: Großzügiges Wohnen in begehrter Lage oder Arbeiten und Wohnen in einem Haus

€ 1.900
Kaltmiete zzgl. NK
203 m²
Wohnfläche ca.
5
Zimmer
776 m²
Grundstücksfl. ca.

Der Anbieter dieses Objekts hat gegenüber der AVIV Germany GmbH als Betreiber dieses Online-Marktplatzes erklärt, nicht als Unternehmer im Sinne des § 1 KSchG zu handeln. Die im Verbraucherschutzrecht der Union verankerten Verbraucherrechte (insbesondere Informationspflichten und Rücktritts- bzw. Widerrufsrechte) finden auf den Vertrag zwischen dem Anbieter des Objekts und Ihnen (dem Interessenten) keine Anwendung.

Gewerblicher Anbieter

Der Anbieter dieses Objekts hat gegenüber der AVIV Germany GmbH als Betreiber dieses Online-Marktplatzes erklärt, als Unternehmer im Sinne des § 1 KSchG zu handeln.

AdresseStraße nicht freigegeben
47608 Geldern 
Auf Karte ansehen

Preise & Kosten

Kaltmiete € 1.900 Nebenkosten € 300 Heizkosten nicht in Warmmiete enthalten

Lage

Begehrte Lage in Geldern. Dieser Teil des Haagschen Feldes ist völlig ohne Durchgangsverkehr. Allerdings grenzt der Garten an eine innerörtliche Umgehungsstraße. Man erreicht in wenigen Minuten Wanderwege der nahen Niers und des großen Golfplatzes Schloss Haag.
Das überörtliche Straßennetz ist hervorragend angebunden. Vom...

Mehr anzeigen

Das Haus

Kategorie

Einfamilienhaus

Baujahr

1974

  • Zustand: gepflegt
  • voll unterkellert
  • Terrasse, Balkon
  • 2 Stellplätze: Garage, Außen-Stellplatz
  • Bad mit Wanne und Dusche, Gäste-WC
  • Weitere Räume: Wasch-Trockenraum
  • Sauna

Energie & Heizung

Weitere Energiedaten

Heizungsart

offener Kamin, Zentralheizung

Details

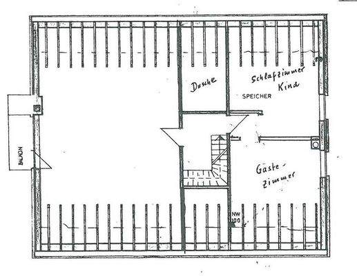
Objektbeschreibung

Dieses freistehende Einfamilienhaus befindet sich in einem reinen Wohngebiet in bevorzugter Lage und bietet zahlreiche Nutzungsmöglichkeiten. Mit einer Wohnfläche von 203 m² erstreckt sich die Immobilie über 5 Zimmer, Küche, Diele, Flur, 2 Bäder und ein Gäste-WC. Der großzügige Grundriss ermöglicht eine flexible...

Mehr anzeigen

Ausstattung

offener Kamin im Wohnzimmer, Einbauküche, großes Studio mit Balkon, großer Hobbyraum im Keller, Sauna mit geräumiger Nasszone, Marmorboden im Eingangsbereich, Kirschholzparkettboden im Wohnzimmer, Küche gefliest, Laminatboden im Studio, Bäder mit Spiegelschränken, Gäste-Toilette, Deckenspots im Wohnzimmer

Preisinformation

2 Stellplätze
2 Garagenstellplätze

Weitere Informationen

Stichworte
Garage vorhanden, Anzahl der Schlafzimmer: 4, Anzahl der Badezimmer: 2, Anzahl Balkone: 1, Anzahl Terrassen: 1, Anzahl der Wohneinheiten: 1, Bundesland: NW, 2 Etagen

Anbieter der Immobilie

Partner

Eck & Company Immobilien GmbH

im Durchschnitt  4,60  Sterne
(bei 13 Bewertungen)

Am Nierspark 7, 47608 Geldern

Geschäftszeiten
user

Petra Schoppmann

Dein Ansprechpartner

Anbieter-Website Anbieter-Profil Anbieter-Impressum

Online-ID: 2mad35l

Referenznummer: P2008

Finde Angebote wie dieses

imageimageimage

Hier geht es zu unserem Impressum, den Allgemeinen Geschäftsbedingungen, den Hinweisen zum Datenschutz und nutzungsbasierter Online-Werbung.