
Danhaus Verkaufsbüro Nordhorn - Harald Kremer - Handelsvertretung für die Danhaus GmbH
Harald Kremer
Kontaktiere den Anbieter schriftlich, es ist keine Telefonnummer hinterlegt.
Preise & Kosten
Provision für Käufer
provisionsfrei
Lage
Münster-Hiltrup
Das Haus
Kategorie
Einfamilienhaus
Energie & Heizung
Warum sehe ich diese Anzeige? – Du siehst diese Anzeige basierend auf Ihrer Navigation auf unserer Website und den Suchkriterien, die du verwendet hast.
Weitere Energiedaten
Heizungsart
Fußbodenheizung
Details
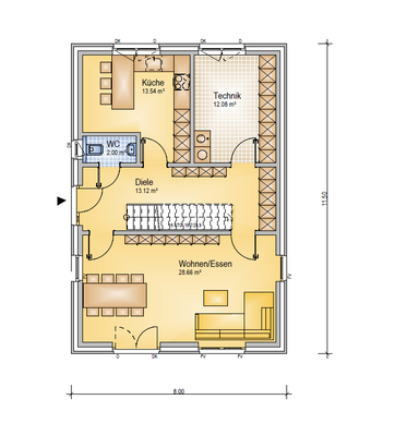
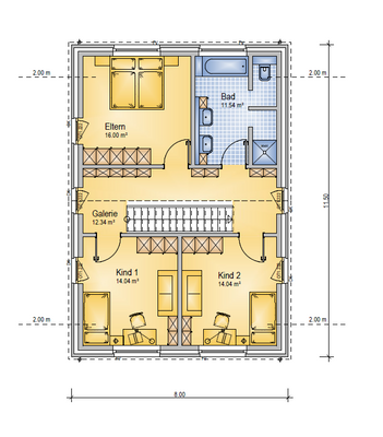
Objektbeschreibung
Herzlich willkommen in Ihrem technologisch hochwertigen Zuhause, wo Innovation und Komfort Hand in Hand gehen. Dieses Meisterwerk vereint modernste Technologie mit elegantem Design und erfüllt selbst die anspruchsvollsten Standards. Die Wohnräume sind mit innovativer Technologie ausgestattet, die den Komfort maximieren. Ihr...
Ausstattung
Neben kurzen Bauzeiten, innovativer Haustechnik, attraktiver Architektur und hochwertiger Qualität bietet Ihnen das angebotene Danhaus im folgende Mehr-Werte:
- Danhaus-Bodenplatte
- auf Wunsch auch als Effizienzhaus 40 oder 40 Plus lieferbar
- alle Danhäuser standardmäßig mit Klima-Hybrid Komfort-Wänden
-...
Weitere Informationen
Sonstiges
Das Haus ist projektiert inkl. Grundstück. Das Grundstück wird in Kommission angeboten bzw. direkt von Dritten verkauft. Daher kann der o.g. Preis aufgrund aktueller Marktsituationen schwanken.
Die Bauabwicklung kann kurzfristig nach Grundstückserwerb begonnen werden. Bilder zeigen möglicherweise...
Anbieter der Immobilie
Danhaus Verkaufsbüro Nordhorn - Harald Kremer - Handelsvertretung für die Danhaus GmbH
Vechteaue 1b, 48529 Nordhorn
Harald Kremer
Dein Ansprechpartner
Kontaktiere den Anbieter schriftlich, es ist keine Telefonnummer hinterlegt.
Online-ID: 2mad35s
Referenznummer: DH-48281
Finde Angebote wie dieses
Hier geht es zu unserem Impressum, den Allgemeinen Geschäftsbedingungen, den Hinweisen zum Datenschutz und nutzungsbasierter Online-Werbung.