

DFI-Immobilien UG
Herr Joachim Kuhn DFI-Immobilien UG
073 ···
Nr. anzeigenPreise & Kosten
Provision für Käufer
4,76%
Lage
Die Gemeinde Nattheim mit ihren Ortsteilen Fleinheim, Auernheim und Steinweiler liegt, umgeben von idyllischen Wäldern und Wacholderheiden, an der Schwelle von Härtsfeld und Brenztal. Sie wird zwar dem Härtsfeld zugerechnet, unterscheidet sich aber durch das etwas wärmere Klima von den übrigen Härtsfeldgemeinden. Im Osten...
Das Haus
Kategorie
Mehrfamilienhaus
Baujahr
1954
Bezug
sofort
Derzeitige Nutzung
frei
Energie & Heizung
Warum sehe ich diese Anzeige? – Du siehst diese Anzeige basierend auf Ihrer Navigation auf unserer Website und den Suchkriterien, die du verwendet hast.
Energieausweistyp
Bedarfsausweis
Gebäudetyp
Wohngebäude
Baujahr laut Energieausweis
1954
Effizienzklasse
F
Endenergiebedarf
183,70 kWh/(m²·a)
Weitere Energiedaten
Energieträger
Öl
Heizungsart
Zentralheizung
Details
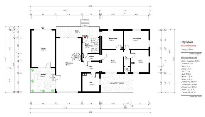
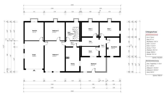
Objektbeschreibung
Diese großzügige Immobilie bietet mit einer Wohnfläche von 494 Quadratmetern viel Platz zum Leben und Wohlfühlen. Das Haus wurde im Jahr 1953 erbaut (Erweiterung 1976, Umbau 1983 )und verfügt über insgesamt 10 Zimmer, darunter 6 Schlafzimmer. Das Satteldach und die verputzte Fassade verleihen dem Gebäude einen rustikalen...
Ausstattung
Fenster: Aluminium- Isolierglas 2 Fach
Böden: Laminat und Fliesen
Sanitär: EG Badewanne, Dusche, WC, Sep.WC
OG: Badewanne, Dusche, WC, sep. WC
Heizung: Öl-Zentral
3 Balkone
Terrasse
Große Garage auch für Kleingewerbe geeignet.
1 Normale Garage
4 Stellplätze
Weitere Informationen
Sollten wir Ihr Interesse geweckt haben und Sie haben Fragen oder möchten einen Besichtigungstermin vereinbaren, erreichen Sie uns unter den folgenden Kontaktdaten.
Wir freuen uns von Ihnen zu hören!
*************** Wichtig ***************
Für die Zusendung des Exposés / weitere Informationen zum Objekt sowie...
Anbieter der Immobilie
DFI-Immobilien UG
Beckenkreuz 9/3, 89471 Laupheim

Online-ID: 2madz5d
Finde Angebote wie dieses
Hier geht es zu unserem Impressum, den Allgemeinen Geschäftsbedingungen, den Hinweisen zum Datenschutz und nutzungsbasierter Online-Werbung.