Version: 8.25.2Navigation überspringen
550.000 €
3 Zimmer  •  72 m²  •  3. Geschoss
Immowelt logo

Wohnung zum Kauf - Erstbezug
550000 €
7.638 €/m²
3 Zimmer  •  72 m²  •  3. Geschoss

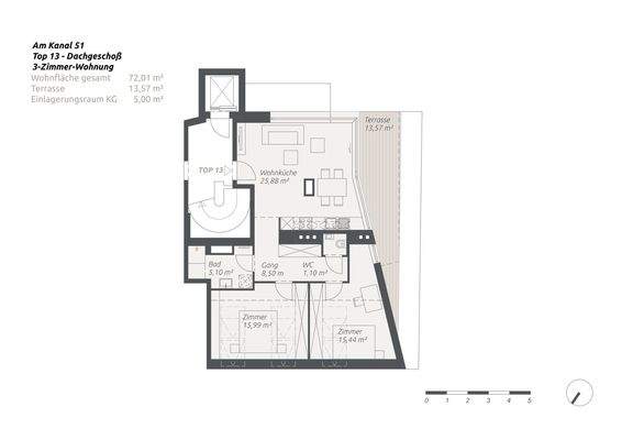
Exklusive 3-Zimmer-Dachgeschosswohnung mit Südwest-Terrasse

Um 1900 vom renommierten Wiener Architekten Alois Koch für die Obsthändlerfamilie Hüber erbaut, trägt das klassische Biedermeierhaus im 11. Bezirk die Handschrift einer Zeit, in der auf echtes Handwerk, bleibende Qualität und zeitlose Bauweise Wert gelegt wurde.
Ruhig gelegen, zwischen einem gepflegten Garten und einem begrünten Innenhof, befindet sich das dreigeschossige Haus mit zwölf hochwertig ausgeführten Wohneinheiten und zwei Garagenplätzen. Erschlossen wird es über eine verkehrsfreie Allee. Der von Lederleitner gestaltete Gemeinschaftsgarten mit seinem alten Baumbestand - darunter Nuss- und Obstbäume - schafft eine romantische Atmosphäre mit Geschichte. Für alle, die gerne gärtnern, stehen eigene Hochbeete zur Verfügung. Mit Liebe zum Detail und Gespür für den Bestand bleiben ausgewählte Originalelemente erhalten - etwa das historische Stiegengeländer oder charakteristische Alt-Wiener Fliesen, die den ursprünglichen Charakter des Hauses bewahren. Gleichzeitig sorgen neu gestaltete Grundrisse, eleganter Fischgrätparkett und eine hochwertige Ausstattung für zeitgemäßen Wohnkomfort. Ob kompakte Balkonwohnung oder großzügige Familienwohnung mit Garten - im LORYHAUS entsteht Wohnraum, liebevoll durchdacht für unterschiedliche Bedürfnisse und Lebensphasen.

Wohnungsbeschreibung:

Diese hochwertige Dachgeschosswohnung bietet durch ihre Ost-Süd-West-Ausrichtung Sonne von früh bis spät und schafft damit eine besonders helle und angenehme Wohnatmosphäre. Große Fensterflächen sowie Deckenhöhen von bis zu über drei Metern verleihen den Räumen eine beeindruckende Großzügigkeit und ein offenes Wohngefühl.

Die durchdachte 3-Zimmer-Aufteilung kann auf Wunsch noch flexibel an Ihre individuellen Vorstellungen angepasst werden. Eine großzügige Terrasse in Südwest-Ausrichtung erweitert den Wohnbereich ins Freie und bietet ideale Voraussetzungen, um die Nachmittags- und Abendsonne in privater Atmosphäre zu genießen.

Hochwertige Dielenböden, edle Fliesen, ein direkter Liftzugang zur Wohnung sowie zwei komfortable Garagenplätze direkt am Haus unterstreichen den exklusiven Charakter dieser Immobilie.

Fertigstellung: 12/2026

Hinweis gemäß Energieausweisvorlagegesetz: Ein Energieausweis wurde vom Eigentümer bzw. Verkäufer, nach unserer Aufklärung über die generell geltende Vorlagepflicht, sowie Aufforderung zu seiner Erstellung noch nicht vorgelegt. Daher gilt zumindest eine dem Alter und der Art des Gebäudes entsprechende Gesamtenergieeffizienz als vereinbart. Wir übernehmen keinerlei Gewähr oder Haftung für die tatsächliche Energieeffizienz der angebotenen Immobilie.

Infrastruktur / Entfernungen

Gesundheit
Arzt <500m
Apotheke <500m
Klinik <1.000m
Krankenhaus <2.500m

Kinder & Schulen
Schule <500m
Kindergarten <500m
Universität <1.000m
Höhere Schule <1.500m

Nahversorgung
Supermarkt <500m
Bäckerei <500m
Einkaufszentrum <1.000m

Sonstige
Geldautomat <500m
Bank <500m
Post <500m
Polizei <500m

Verkehr
Bus <500m
U-Bahn <500m
Straßenbahn <500m
Bahnhof <500m
Autobahnanschluss <1.000m

Angaben Entfernung Luftlinie / Quelle: OpenStreetMap

Merkmale

  • Bezug: 2026
  • 3. Geschoss
  • Personenaufzug
  • 2 Stellplätze: Garage, 2 Außen-Stellplätze
  • Gäste-WC
  • Garten

Grundrisse

Grundrisse
1 / 3

Bausubstanz und Energie

Möchtest du Details zum Energieverbrauch?info_energy_calculation-icon
  • Baujahr2025
  • Zustand der ImmobilieNeubau, Erstbezug
  • HeizungsartFußbodenheizung
  • EnergieträgerLuft-/Wasser-Wärmepumpe
Immowelt logo

Preisdetails

Kaufpreis
550000 €
7.637,83 €/m²
Provision für Käufer
3% des Kaufpreises zzgl. 20% USt.
Weitere Preisinformationen
2 Stellplätze
1 Garagenstellplatz

Lage

address-icon
Wien (1110)
Der Anbieter hat die genaue Adresse nicht freigegeben
An der Grenze zwischen dem 11. und 3. Bezirk, im Südosten Wiens, liegt das LORYHAUS - ein liebevoll revitalisiertes Biedermeierhaus mit Stadtgarten, ruhig gelegen und dennoch bestens angebunden.

Nur zwei Gehminuten entfernt befindet sich die S-Bahn-Station Geiselbergstraße (S7), mit direkter Verbindung zum Flughafen Wien-Schwechat in etwa 15 Minuten. Die U-Bahn-Station Zippererstraße (U3) erreichen Sie in nur drei Gehminuten, die Station Enkplatz (U3) ebenfalls schnell zu Fuß. Mit der U3 gelangen Sie in rund 10 Minuten direkt ins Herz der Stadt, zum Stephansplatz. Der Wiener Hauptbahnhof liegt etwa 3,5 Kilometer entfernt.
Für den Individualverkehr sind die Südosttangente (A23) und die Ostautobahn (A4) in wenigen Minuten erreichbar. Sie bieten eine rasche Anbindung an den Flughafen und an das überregionale Verkehrsnetz.
Das nahegelegene Einkaufszentrum huma eleven sowie der Prater mit dem historischen Lusthaus bieten zusätzliche Einkaufs-, Erholungs- und Freizeitmöglichkeiten.
Das LORYHAUS vereint die Eleganz der Biedermeierzeit mit den Vorteilen einer urbanen Lage - für alle, die ein stilvolles Zuhause mit Geschichte suchen

- S-Bahn Geiselbergstraße (S7): 2 Min. zu Fuß
- U-Bahn Zippererstraße (U3): 3 Min. zu Fuß
- Stephansplatz: 10 Min. mit U3
- Flughafen Wien: 20 Min. mit S7
- Hauptbahnhof: 3,5 km entfernt
- Autobahnen: A23 und A4 in wenigen Minuten erreichbar

Weitere Informationen

Stichworte Süd-Ost-West-Balkon/Terrasse, Fahrradraum, Gesamtfläche: 85,58 m², Grundstücksfläche: 890,00 m², Anzahl der Badezimmer: 1, Anzahl der separaten WCs: 1, Anzahl Terrassen: 1, Balkon-Terrassen-Fläche: 13,57 m², Kellerfläche: 5,00 m², Bundesland: Wien, 4 Etagen

Weitere Services

Lust auf eine Besichtigung?
Eine Frage zur Immobilie?
Nachricht hinzufügen
Mit der Nutzung der oben angegebenen Telefonnummer oder durch Klicken auf „Kontaktieren“ akzeptierst Du die Allgemeinen Nutzungsbedingungen, denen Du jederzeit widersprechen kannst. Weitere Informationen zum Datenschutz

Über den Anbieter

Göttweihergasse 1/1, 1010 WIEN
partner badge
Partnerschaft
Herr Elijah Euler-RolleDein Kontakt
Online-ID: 25CS3IQ51ZLS
Referenznummer: OBGC2025120910522984924a89ff3d7
Wie zufrieden bist du mit dieser Seite (nicht mit der Immobilie selbst)?