

Kriech Immobilien e.K.
Herr Holger Kriech
041 ···
Nr. anzeigenPreise & Kosten
Provision für Käufer
3,5% inkl. MwSt. vom Kaufpreis Käufercourtage
Mit dem Verkäufer wurde ein Maklervertrag in gleicher Höhe geschlossen.
Lage
Das Reihenhaus befindet sich in ruhiger Lage im Wohngebiet "Rosenfeld" in Pinneberg.
Diverse Einkaufsmöglichkeiten sind schnell erreichbar. Der Pinneberger Bahnhof ist nur ca. 2,5 km entfernt. Die Bushaltestellen sind in wenigen Gehminuten erreicht.
Die Autobahn (A23, Pinneberg-Süd) ist nur ca. 3,8 km entfernt
Das Haus
Baujahr
2007
Bezug
sofort
Energie & Heizung
Warum sehe ich diese Anzeige? – Du siehst diese Anzeige basierend auf Ihrer Navigation auf unserer Website und den Suchkriterien, die du verwendet hast.
Energieausweistyp
Verbrauchsausweis
Gebäudetyp
Wohngebäude
Baujahr laut Energieausweis
2007
Wesentliche Energieträger
Gas
Gültigkeit
09.12.2025 bis 08.12.2035
Endenergieverbrauch
34,00 kWh/(m²·a)
Weitere Energiedaten
Energieträger
Gas
Heizungsart
Zentralheizung
Details
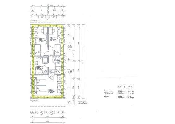
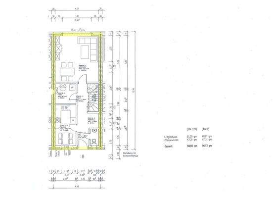
Objektbeschreibung
Dieses moderne Reihenhaus wurde in massiver Bauweise errichtet und erstreckt sich über zwei Vollgeschosse (ca. 96 m²) und zusätzlich ausgebautem Dachgeschoss (entspricht einer Wfl. von ca. 27 m²).
DAS EXPOSÈ MIT ANSCHRIFT erhalten Sie direkt über unsere Homepage www.kriech-immobilie.de
Im Erdgeschoss befindet...
Ausstattung
- zwei Vollgeschosse + ausgeb. Dachgeschoss
- energieeffiziente Bauweise, dadurch geringe Energiekosten
- helle Ausstattung
- gute, familienfreundliche Raumaufteilung
- elektrische Außenrollläden im Wohnzimmer und in der Küche
- Einbauküche mit großzügiger Essplatzmöglichkeit
- Gäste-WC mit Fenster
-...
Weitere Informationen
Sonstiges
Äußerst interessantes und modernes Reihenhaus für die junge Familie.
Fordern Sie gerne das Exposé mit Anschrift über unsere Homepage www.kriech-immobilien.de an.
Alle Angaben nach Auskunft und Unterlagen des Auftraggebers, trotz aller Sorgfalt ohne Gewähr. Irrtümer sind vorbehalten.
Das...
Anbieter der Immobilie
Kriech Immobilien e.K.
Uetersener Str. 37a, 25436 Tornesch

Online-ID: 2mafk5v
Referenznummer: B-P40-385
Finde Angebote wie dieses
Hier geht es zu unserem Impressum, den Allgemeinen Geschäftsbedingungen, den Hinweisen zum Datenschutz und nutzungsbasierter Online-Werbung.