

Gruttmann Immobilien GmbH
Frau Britta C. Gruttmann
030 ···
Nr. anzeigenPreise & Kosten
Provision für Käufer
Gemäß der gesetzlichen Regelung zur Teilung der Maklercourtage beträgt die Provision 3,57% des Kaufpreises inklusive 19% MwSt. jeweils in gleicher Höhe für die Verkäuferseite sowie für die Käuferseite.
Lage
Wannsee ist ein Ortsteil im Bezirk Steglitz-Zehlendorf und liegt im äußersten Südwesten Berlins, idyllisch eingebettet zwischen mehreren Seen. Aufgrund dieser besonderen Lage wird das Gebiet auch als „Wannsee-Insel“ bezeichnet. Der Ortsteil bietet eine einzigartige Mischung aus Villenkolonien, geschichtsträchtigen Orten...
Das Haus
Baujahr
1968
Energie & Heizung
Warum sehe ich diese Anzeige? – Du siehst diese Anzeige basierend auf Ihrer Navigation auf unserer Website und den Suchkriterien, die du verwendet hast.
Energieausweistyp
Bedarfsausweis
Gebäudetyp
Wohngebäude
Baujahr laut Energieausweis
2023
Wesentliche Energieträger
Gas
Gültigkeit
19.08.2025 bis 18.08.2035
Effizienzklasse
G
Endenergiebedarf
224,60 kWh/(m²·a)
Weitere Energiedaten
Energieträger
Gas
Heizungsart
Zentralheizung
Details
Objektbeschreibung
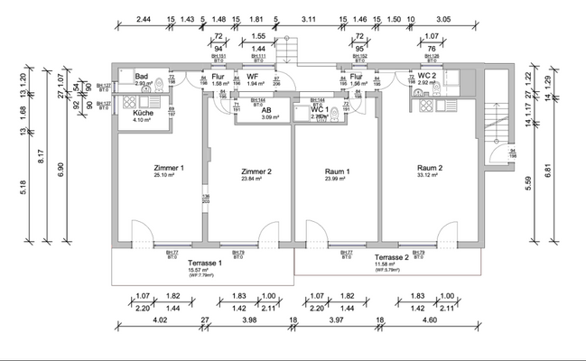
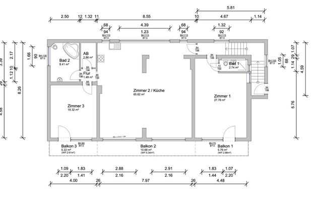
Das Gebäude wurde im Jahr 1964 auf einem ca. 1.043 m² großen Grundstück errichtet, umfasst insgesamt vier Wohneinheiten und hat insgesamt eine Wohn- und Nutzfläche von ca. 437 m².
Im Hochparterre befinden sich drei separate Einheiten. Die erste Einheit bietet einen Flur, einen Abstellraum, zwei Zimmer, eine Küche...
Weitere Informationen
Stichworte
Sonstiges: frei werdend
Anbieter der Immobilie

Online-ID: 2mafz5s
Referenznummer: VK-23351_EFH_d
Finde Angebote wie dieses
Hier geht es zu unserem Impressum, den Allgemeinen Geschäftsbedingungen, den Hinweisen zum Datenschutz und nutzungsbasierter Online-Werbung.