

Philipp Zimmermann Immobilien GmbH & Co. KG
Herr Philipp Zimmermann
+49 ···
Nr. anzeigenPreise & Kosten
Provision für Käufer
3,57% inkl. 19% Mehrwertsteuer
Lage
Dieses Abrissobjekt befindet sich zentraler Lage am Dorfplatz des beliebten Konstanzer Ortsteil "Dingelsdorf".
"Dingelsdorf" verfügt über kleinere Einkaufsmöglichkeiten und bietet einen hohen Freizeitwert mit seiner Lage am Bodensee und kurzen Wegen in die Natur.
Eine Bushaltestelle des öffentlichen Nahverkehrs liegt...
Das Grundstück
Details
Objektbeschreibung
Auf dem Grundstück befinden sich zwei ehem. abbruchreife Bauernhäuser mit Scheune.
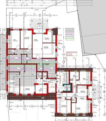
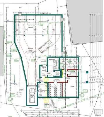
Es liegt eine Baugenehmigung zum Neubau von 9 Wohnungen und 9 Tiefgaragenplätzen vor.
Die 9 Wohnungen teilen sich in drei Geschosse (Erdgeschoss, Obergeschoss und Dachgeschoss) auf.
Aufgrund der Lage im alten Dorfkern muss der...
Weitere Informationen
Sonstiges
Der Energieausweis ist in Vorbereitung.
Das Objekt ist befristet für eine monatliche Kaltmiete von EUR 1.800,00 vermietet und kann ab Oktober / November 2025 oder nach Absprache bezugsfrei übergeben werden.
Anbieter der Immobilie
Philipp Zimmermann Immobilien GmbH & Co. KG
Leinerstraße 20, 78462 Konstanz

Online-ID: 2mag35z
Referenznummer: H-347-1
Finde Angebote wie dieses
Hier geht es zu unserem Impressum, den Allgemeinen Geschäftsbedingungen, den Hinweisen zum Datenschutz und nutzungsbasierter Online-Werbung.