

Sd-Charity-Immobilien und Gutachten
Frau Sabine Yvonne Doll
+49 ···
Nr. anzeigenPreise & Kosten
Provision für Käufer
2,38%
Lage
Das Neubauprojekt unterhalb des Haardter Schloßes verbindet ruhiges, naturnahes Wohnen mit exzellenter Infrastruktur: Nahversorgung, Bildung, medizinische Praxis, Verkehrsanbindung - alles vorhanden. Die Nähe zur Innenstadt, die landschaftliche Lage am Haardtrand mit Weinbergen, Wald und Aussicht machen die Lage besonders...
Das Haus
Kategorie
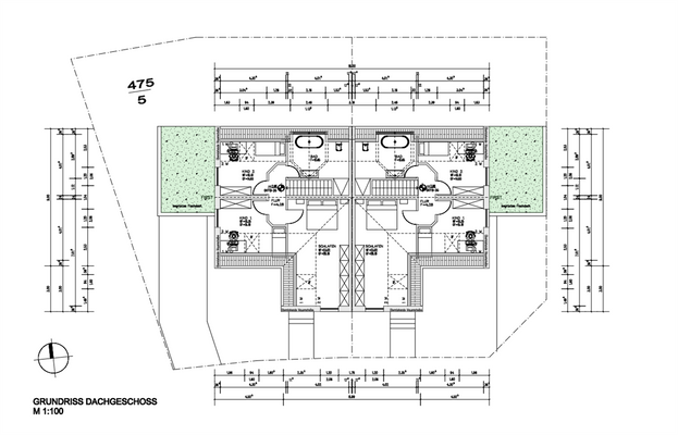
Doppelhaushälfte
Baujahr
2026
Energie & Heizung
Warum sehe ich diese Anzeige? – Du siehst diese Anzeige basierend auf Ihrer Navigation auf unserer Website und den Suchkriterien, die du verwendet hast.
Weitere Energiedaten
Haustyp
Massivhaus
Heizungsart
Fußbodenheizung, Zentralheizung
Details
Objektbeschreibung
Architekten-NEUBAU in Planung - Wohnträume in erstklassiger Wohnlage!
In einer der begehrtesten Wohnlagen der Pfalz - Neustadt-Haardt - Schloßacker entstehen diese nachhaltigen Wohnerlebnisse. Die modernen Doppelhäuser in malerischer Wohnlage zwischen den Weinbergen und dem Pfälzerwald sind aktuell in Planung. Es zeigen...
Ausstattung
Die hybride Bauweise der Doppelhäuser - eine moderne Kombination aus massiver Betonweise im Kellergeschoß und Trennung zum Nachbarhaus, wie auch die ökologische Holzbauweise, bieten dauerhaft, energieeffizientes Wohnen auf höchstem Niveau.
Das Kellergeschoß wird in wasserundurchlässigem Stahlbeton (WU-Beton) ausgeführt und...
Preisinformation
1 Carportplatz
Weitere Informationen
Sonstiges
Die sd-charity IMMOBILIEN und Gutachten bietet Ihnen eine seriöse Vermarktung Ihres Eigentums. Als zertifizierte Sachverständige D1 und Beleihungswertermittlung (BelWertV) sind Sie mit uns auf der sicheren Seite.
Weitere Informationen:
Alle vom Vermittler weitergegebenen Exposés und Informationen sind...
Anbieter der Immobilie
Sd-Charity-Immobilien und Gutachten
Weinstraße 53, 67146 Deidesheim

Online-ID: 2mage52
Referenznummer: SDC-2025-910 (1/910)
Finde Angebote wie dieses
Hier geht es zu unserem Impressum, den Allgemeinen Geschäftsbedingungen, den Hinweisen zum Datenschutz und nutzungsbasierter Online-Werbung.