
Wohnsalon Immobilien GmbH
Frau Betül Cakmak
+43 ···
Nr. anzeigenPreise & Kosten
Provision für Käufer
46.800,00 € inkl. 20% USt.
Lage
Diese attraktive Immobilie befindet sich im begehrten 19. Wiener Gemeindebezirk, bekannt für seine ruhigen Wohngegenden und grünen Oasen. Umgeben von einer freundlichen Nachbarschaft sind Schulen und öffentliche Verkehrsanbindungen wie Buslinien in unmittelbarer Nähe. Hier genießen Sie die perfekte Kombination aus urbanem...
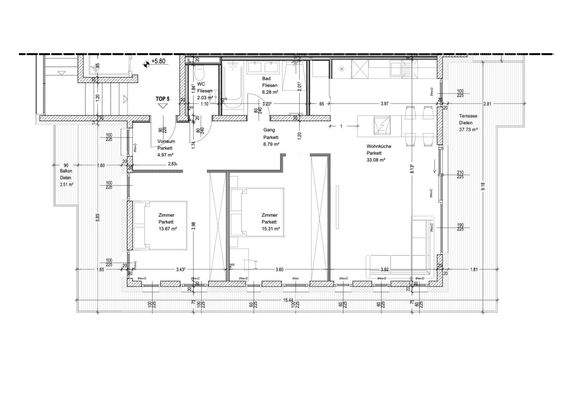
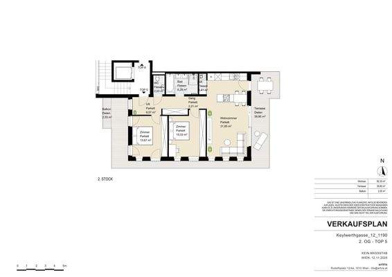
Die Wohnung
Wohnungslage
2. Geschoss
Bezug
Jänner 2028
Wohnanlage
Energie & Heizung
Warum sehe ich diese Anzeige? – Du siehst diese Anzeige basierend auf Ihrer Navigation auf unserer Website und den Suchkriterien, die du verwendet hast.
Heizwärmebedarf (HWB)
29,10 kWh/(m²·a)
Gesamtenergieeffizienz (fGEE)
0,64
Weitere Energiedaten
Energieträger
Solar
Heizungsart
Fußbodenheizung, Luft-/Wasser-Wärmepumpe
Details
Objektbeschreibung
Willkommen in Ihrem neuen Zuhause im begehrten 19. Bezirk - dort, wo urbane Eleganz auf die idyllische Kulisse der umliegenden Weinberge trifft.
Diese erstklassige Erstbezugswohnung vereint modernen Wohnkomfort, hochwertige Architektur und eine Lage, die durch ihre besondere Mischung aus Natur, Ruhe und Stadtnähe...
Preisinformation
1 Stellplatz
Weitere Informationen
Stichworte
Tiefgarage vorhanden, Ost-West-Balkon/Terrasse, Anzahl der Badezimmer: 1, Anzahl der separaten WCs: 1, Anzahl Balkone: 1, Anzahl Terrassen: 1, Balkon-Terrassen-Fläche: 40,24 m², Bundesland: Wien, 3 Etagen
Anbieter der Immobilie

Wohnsalon Immobilien GmbH
Mariahilfer Straße 57-59, 1060 WIEN
Online-ID: 2magl5t
Referenznummer: OBGC202512231350403026a1824b2d8
Finde Angebote wie dieses
Günstige Immobilienfinanzierung einfach online berechnen
Persönliches Angebot berechnenWarum sehe ich diese Werbung? – Du siehst diese Werbung basierend auf Deiner Navigation auf unserer Website und der von Dir verwendeten Suchkriterien.
Diese Werbung wird bezahlt von durchblicker
Werbung melden
Hier geht es zu unserem Impressum, den Allgemeinen Geschäftsbedingungen, den Hinweisen zum Datenschutz und nutzungsbasierter Online-Werbung.