

Immobilien Schönberger & Wiener GbR
Herr Daniel Kollmann
+49 ···
Nr. anzeigenPreise & Kosten
Provision für Käufer
provisionsfrei
Lage
Die Gemeinde Thalmassing befindet sich im Landkreis Regensburg. Je nach Fahrtstrecke ist Regensburg mit ca. 18 km in 17 Min über die A93 zu bewältigen. Auch die infrastrukturelle Anbindung in Richtung Obertraubling und Neutraubling ist sehr gut. Thalmassing selbst ist mit rund 37,11m² km Fläche und ca. 3.300 Einwohnern eine...
Das Haus
Kategorie
Doppelhaushälfte
Baujahr
2025
Bezug
nach Absprache
Energie & Heizung
Warum sehe ich diese Anzeige? – Du siehst diese Anzeige basierend auf Ihrer Navigation auf unserer Website und den Suchkriterien, die du verwendet hast.
Weitere Energiedaten
Heizungsart
Fußbodenheizung, Luft-/Wasser-Wärmepumpe
Details
Objektbeschreibung
Willkommen in Ihrem neuen Zuhause!
Diese hochwertige Doppelhaushälfte in ruhiger und familienfreundlicher Lage von Thalmassing wird kurzfristig fertiggestellt und verbindet modernen Wohnkomfort mit gehobener Ausstattung.
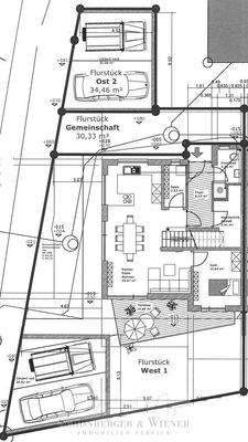
Auf ca. 129 m² Wohnfläche und einem Grundstück von ca. 220 m² erwartet Sie ein lichtdurchflutetes...
Ausstattung
* Böden: Parkett und Fliesen
* KfW 40 Standard,
* Bad mit Dusche und Wanne im 1.OG
* Bad mit Dusche im EG
* Fußbodenheizung
* Photovoltaik mit 9kw frei Wählbar zur Einspeisung oder Selbstnutzung
* Elektroinstallation mit LCN-- Bussystem
* Lichtschalter im System integriert
* elektrische...
Preisinformation
2 Carportplätze, Kaufpreis je: 10.000,00 EUR
Weitere Informationen
Sonstiges
Es liegt ein Energieausweis zur Besichtigung vor.
Bitte haben Sie Verständnis dafür, dass nur Anfragen mit vollständigen Kontaktdaten (Name, Adresse, Telefon, E-Mail) zeitnah beantwortet werden können.
Unsere weiteren zahlreichen Angebote finden Sie unter www.swims.de
Alle Angaben stammen vom...
Anbieter der Immobilie

Online-ID: 2magq5c
Referenznummer: A1968
Finde Angebote wie dieses
Hier geht es zu unserem Impressum, den Allgemeinen Geschäftsbedingungen, den Hinweisen zum Datenschutz und nutzungsbasierter Online-Werbung.