
Brinkum Carrée GmbH
Frau Dagmar Oltmanns-Fischer
044 ···
Nr. anzeigenPreise & Kosten
in Warmmiete enthalten
Kaution
1482
Warum sehe ich diese Anzeige? – Du siehst diese Anzeige basierend auf Ihrer Navigation auf unserer Website und den Suchkriterien, die du verwendet hast.
Lage
Das Ensemble des Brinkum Carrée liegt ruhig in einer privates Sackgasse. Die Lage vor den Toren Bremens bietet eine nahezu direkte Anbindung an die Autobahn A1. Eine fußläufig erreichbare Bushaltestelle gewährt guten Anschluß an das Bremer Nahverkehrsnetz.
Vor Ort sind alle Geschäfte des täglichen Bedarfs in wenigen...
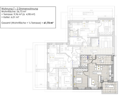
Die Wohnung
Wohnungslage
2. Geschoss
Bezug
02/2026
Derzeitige Nutzung
vermietet
Wohnanlage
Energie & Heizung
Warum sehe ich diese Anzeige? – Du siehst diese Anzeige basierend auf Ihrer Navigation auf unserer Website und den Suchkriterien, die du verwendet hast.
Energieausweistyp
Bedarfsausweis
Gebäudetyp
Wohngebäude
Baujahr laut Energieausweis
2021
Wesentliche Energieträger
Gasförmige Biomasse im Brennwertkessel
Gültigkeit
04.06.2024 bis 04.06.2034
Effizienzklasse
A
Endenergiebedarf
38,00 kWh/(m²·a)
Weitere Energiedaten
Energieträger
Gas
Heizungsart
Fußbodenheizung, Luft-/Wasser-Wärmepumpe, Zentralheizung
Details
Ausstattung
• Balkon mit barrierefreiem Zugang
• Aufzugsanlage
• Fußbodenheizung in der gesamten Wohnung
• Fensterelemente mit Dreischeiben-Wärmeschutzverglasung
• Moderne Wandgestaltung mit Glattflies
• Glasfaseranschluss
• Klimagerechtes Wohnen durch energieeffizienten Kfw-Standard: Hybrid-Heizung mit...
Weitere Informationen
Modernes Wohnen
Diese moderne, neuwertige 2-Zimmer-Wohnung befindet sich im 2. OG eines im Jahr 2022 fertiggestellten Mehrfamilienhauses und steht zur Vermietung. Sie überzeugt durch ihre offene, lichtdurchflutete Raumgestaltung, einen überdachten Balkon sowie eine hochwertige Ausstattung.
Highlights im...
Dokumente
Anbieter der Immobilie
Brinkum Carrée GmbH
Industriering 10a, 49393 Lohne
Online-ID: 2magy5g
Finde Angebote wie dieses
Hier geht es zu unserem Impressum, den Allgemeinen Geschäftsbedingungen, den Hinweisen zum Datenschutz und nutzungsbasierter Online-Werbung.