

JALEA Immobilien GmbH
Frau Ina Baurigk
+49 ···
Nr. anzeigenPreise & Kosten
Provision für Käufer
3,57 %
Lage
Die Sommerstraße liegt am ruhigen Ortsrand von Olching in einer reinen Anwohnerstraße mit direktem Übergang in die umliegenden Felder. Die naturnahe Lage sorgt für ein hohes Maß an Ruhe und Erholung, während gleichzeitig eine sehr gute Anbindung und Infrastruktur gegeben sind - eine ideale Kombination für entspanntes Wohnen...
Die Wohnung
Wohnungslage
Erdgeschoss
Bezug
01.02.2026
Wohnanlage
Energie & Heizung
Warum sehe ich diese Anzeige? – Du siehst diese Anzeige basierend auf Ihrer Navigation auf unserer Website und den Suchkriterien, die du verwendet hast.
Energieausweistyp
Verbrauchsausweis
Gebäudetyp
Wohngebäude
Baujahr laut Energieausweis
2016
Wesentliche Energieträger
GAS
Gültigkeit
bis 30.07.2028
Effizienzklasse
C
Endenergieverbrauch
98,00 kWh/(m²·a)
Weitere Energiedaten
Energieträger
Gas
Heizungsart
Zentralheizung
Details
Objektbeschreibung
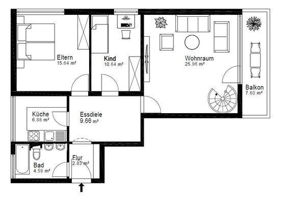
Diese gut geschnittene 3-Zimmer-Wohnung mit zusätzlichem Hobbyraum befindet sich im Hochparterre eines gepflegten Mehrfamilienhauses in ruhiger Feldrandlage von Olching. Die Kombination aus angenehmer Wohnatmosphäre und funktionaler Raumaufteilung macht sie sowohl für Eigennutzer als auch für Kapitalanleger...
Ausstattung
+ Fußbodenheizung im Wohnzimmer
+ frisch renovierter, großer Hobbyraum mit natürlicher Belichtung und Heizung
+ sonniger Südbalkon
+ gemütliche Essecke im Flur
+ Badezimmer mit Badewanne und großem Fenster
+ Jalousien
+ Abstellraum im Keller
Weitere Informationen
Sonstiges
Die Vermittlung dieser Immobilie erfolgt exklusiv durch die JALEA Immobilien GmbH. Mit der Anfrage bei und durch Inanspruchnahme der Dienstleistung der Firma JALEA Immobilien GmbH, wird ein Maklervertrag geschlossen. Vom Käufer ist eine Vermittlungsprovision in Höhe von 3,57 % (inklusive 19% Mehrwertsteuer) vom...
Anbieter der Immobilie

Online-ID: 2mahf5y
Referenznummer: JALEA-209
Finde Angebote wie dieses
Hier geht es zu unserem Impressum, den Allgemeinen Geschäftsbedingungen, den Hinweisen zum Datenschutz und nutzungsbasierter Online-Werbung.