
CSS Christine Streich-Schneider GmbH
Frau Christine Streich-Schneider
070 ···
Nr. anzeigenPreise & Kosten
Provision für Käufer
Wir erhalten im Erfolgsfall für den Nachweis oder die Vermittlung nach Abschluss eines notariellen Kaufvertrages eine Käuferprovision von 3,57% incl. 19% MwSt. berechnet aus dem notariell beurkundeten Kaufvertrag.
Lage
Hailfingen ist der nordöstlichste Stadtteil von Rottenburg und ein Ort, der Ruhe und Lebensqualität vereint. Eingebettet in die sanfte Landschaft des Neckarlands bietet dieser Rottenburger Stadtteil ein idyllisches Zuhause mit gleichzeitig hervorragen-der Anbindung.
Über die B28 und die A81 erreichen Sie Tübingen...
Das Haus
Kategorie
Einfamilienhaus
Baujahr
1992
Bezug
31.03.2026
Energie & Heizung
Warum sehe ich diese Anzeige? – Du siehst diese Anzeige basierend auf Ihrer Navigation auf unserer Website und den Suchkriterien, die du verwendet hast.
Energieausweistyp
Bedarfsausweis
Gebäudetyp
Wohngebäude
Baujahr laut Energieausweis
1992
Wesentliche Energieträger
Strom
Gültigkeit
07.08.2025 bis 07.08.2035
Effizienzklasse
B
Endenergiebedarf
64,50 kWh/(m²·a)
Weitere Energiedaten
Heizungsart
Luft-/Wasser-Wärmepumpe, offener Kamin, Zentralheizung
Details
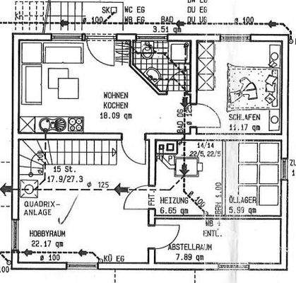
Objektbeschreibung
Dieses attraktive Einfamilienhaus vereint Wohnkomfort, Gemütlichkeit und vielseitige Nutzungsmöglichkeiten. Mit seiner kleinen Einliegerwohnung, dem großzügigen Garten und der idyllischen Lage am Feldrand bietet es ein Zuhause, das gleichermaßen Ruhe und Lebensqualität verspricht.
Mit ca. 130m² Wohnfläche und 5...
Ausstattung
o Wohnfläche Hauptwohnung: ca. 129,67m²
o Wohnfläche Einliegerwohnung: ca. 32,77m²
o 1 Garagenplatz
o 2 Außenstellplätze
o Bodenbeläge: Parkett, Fliesen, PVC
o Einbauküche mit angrenzender Speisekammer
o Kachelofen
o Bad mit Fenster, begehbarer Dusche und Badewanne
o Separates Duschbad im...
Weitere Informationen
Sonstiges
Bitte haben Sie dafür Verständnis, dass wir nur Anfragen mit vollständiger Adresse und Telefonnummer bearbeiten.
Gerne zeigen wir Ihnen dieses schöne Haus. Wir freuen uns auf Ihre Mail oder Ihren Anruf!
Sonstiges
Die Informationen in diesem Exposé beruhen auf Angaben des Verkäufers. Wir haben...
Anbieter der Immobilie
CSS Christine Streich-Schneider GmbH
Steinlachburg 6, 72144 Dußlingen
Online-ID: 2maj55h
Finde Angebote wie dieses
Hier geht es zu unserem Impressum, den Allgemeinen Geschäftsbedingungen, den Hinweisen zum Datenschutz und nutzungsbasierter Online-Werbung.