
Rödenbeck Immobilien
Herr Lars Rödenbeck
041 ···
Nr. anzeigenPreise & Kosten
Provision für Käufer
8.925 € einschl. 19 % MwSt. für den Erwerb des Grundstücks
Die Errichtung des Baukörpers ist provisionsfrei.
Die Courtage ist vom Käufer zu zahlen.
Lage
Das Grundstück liegt ruhig in einer Anwohnerstraße.
Tespe, ein kleiner Ort direkt an der Elbe, gehört zur Samtgemeinde Elbmarsch und zum Landkreis Harburg.
Die Orte Winsen (ca. 20 km entfernt), Lüneburg (ca. 15 km entfernt), Hamburg (ca. 18 km entfernt und Geesthacht (ca. 15 km entfernt) sind schnell mit dem Auto zu...
Das Haus
Kategorie
Doppelhaushälfte
Geschosse
2 Geschosse
Bezug
nach Vereinbarung
Energie & Heizung
Warum sehe ich diese Anzeige? – Du siehst diese Anzeige basierend auf Ihrer Navigation auf unserer Website und den Suchkriterien, die du verwendet hast.
Weitere Energiedaten
Energieträger
Erdwärme
Heizungsart
Luft-/Wasser-Wärmepumpe
Details
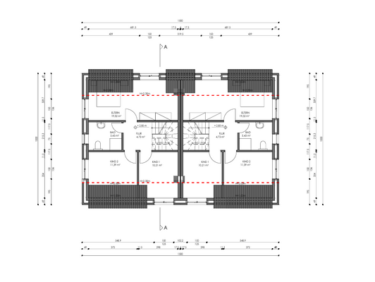
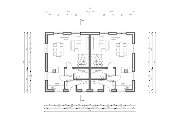
Objektbeschreibung
DHH mit 4 Zimmern
projektiert
Weitere Informationen
Details
Die DHH wird auf einem ca. 507 m² großen Eigentumsgrundstück in massiver Bauweise errichtet.
Zur Haushälfte gehören ein Erdgeschoss und ein Obergeschoss. Ein Spitzboden ist vorhanden, wird aber nicht zu Wohnzwecken ausgebaut.
Die Einheit erhält einen eigenen Technikraum, in dem die Hausanschlüsse und die...
Anbieter der Immobilie
Rödenbeck Immobilien
Beim Schäferdamm 14b, 21382 Brietlingen
Online-ID: 2mamr5k
Finde Angebote wie dieses
Hier geht es zu unserem Impressum, den Allgemeinen Geschäftsbedingungen, den Hinweisen zum Datenschutz und nutzungsbasierter Online-Werbung.