

PRIME VENDO Immobilien GmbH
Herr Nico Poewe
+49 ···
Nr. anzeigenPreise & Kosten
Provision für Käufer
2,38 % inkl. MwSt.
Lage
Diese Wohnlage gehört zu den gesuchten Adressen in Karlsbad - ein Ort, an dem Ruhe, Privatsphäre und gehobenes Wohnen harmonisch ineinandergreifen. Das Umfeld ist geprägt von stilvollen Einfamilienhäusern, gepflegten Grundstücken und einer Atmosphäre, die sofort Wohlgefühl und Wertigkeit vermittelt.
Die Anbindung an...
Das Haus
Kategorie
Einfamilienhaus
Baujahr
1961
Bezug
Nach Vereinbarung
Energie & Heizung
Warum sehe ich diese Anzeige? – Du siehst diese Anzeige basierend auf Ihrer Navigation auf unserer Website und den Suchkriterien, die du verwendet hast.
Weitere Energiedaten
Haustyp
Massivhaus
Energieträger
Gas
Heizungsart
Zentralheizung
Details
Objektbeschreibung
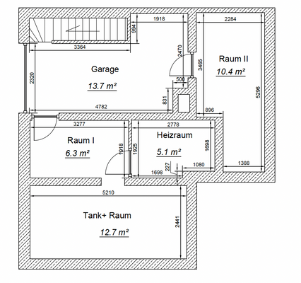
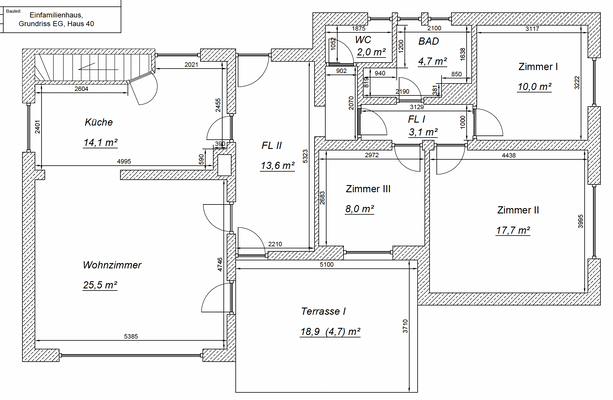
Dieses außergewöhnliche Einfamilienhaus aus dem Jahr 1961 vereint traditionelle Wertigkeit mit zeitlosem Wohnkomfort und präsentiert sich als ein Zuhause für Menschen mit Anspruch. Auf einem großzügigen Grundstück von 616 m² eröffnet sich eine Wohnfläche von rund 103,4 m², die durch ihre Massivbauweise, klare Struktur und...
Ausstattung
- Neue Gaszentralheizung aus 2024
- Elektrotechnik erneuert 2021
- Gäste-WC
- Tolle Dielenböden
- 5 Zimmer inkl. der Küche
- Einbauküche
- Garagenstellplatz
- Außenstellplatz
- Großzügiges Grundstück
- Terrassenbereich mit toller Sonnenausrichtung
Preisinformation
1 Garagenstellplatz
Weitere Informationen
Stichworte
Garage vorhanden, Anzahl der Schlafzimmer: 3, Anzahl der Badezimmer: 1, Anzahl der separaten WCs: 1, Anzahl Terrassen: 1, Lage im Wohngebiet
Anbieter der Immobilie

Online-ID: 2mamv5f
Referenznummer: 115789767#img1T
Finde Angebote wie dieses
Hier geht es zu unserem Impressum, den Allgemeinen Geschäftsbedingungen, den Hinweisen zum Datenschutz und nutzungsbasierter Online-Werbung.