
IMMOcontract Immobilien Vermittlung GmbH
Herr Jan Sarkantyu
004 ···
Nr. anzeigenPreise & Kosten
inkl. Betriebskosten
Kaution
3 Bruttomonatsmieten
Provision für Mieter
Gemäß Erstauftraggeberprinzip bezahlt der Abgeber die Provision.
Warum sehe ich diese Anzeige? – Du siehst diese Anzeige basierend auf Ihrer Navigation auf unserer Website und den Suchkriterien, die du verwendet hast.
Lage
zentrale Lage in der Grazer Innenstadt - beim Schloßberg
Die Wohnung
Wohnungslage
2. Geschoss
Bezug
sofort
Energie & Heizung
Warum sehe ich diese Anzeige? – Du siehst diese Anzeige basierend auf Ihrer Navigation auf unserer Website und den Suchkriterien, die du verwendet hast.
Heizwärmebedarf (HWB)
104,70 kWh/(m²·a)
Gesamtenergieeffizienz (fGEE)
1,54
Weitere Energiedaten
Energieträger
Fernwärme
Heizungsart
Zentralheizung
Details
Objektbeschreibung
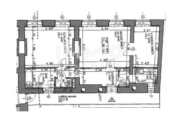
Diese ca. 71,39 m² große Wohnung befindet sich im 2. Stock des Hauses Sporgasse 29 - in zentralster Lage.
Raumaufteilung: Vorraum, 3 Zimmer, Küche, Bad, Toilette
Ausstattung: Die Böden sind in erster Linie mit Parkett ausgestattet. Die Fenster sind aus Holz, Der Küchenbereich ist möbliert und verfügt über ein...
Preisinformation
Nettokaltmiete: 499,72 EUR
Weitere Informationen
Stichworte
Anzahl der Badezimmer: 1, Anzahl der separaten WCs: 1, Bundesland: Steiermark, Distanz zum Kindergarten: 0.31, Distanz zur Grundschule: 0.12, Distanz zur Realschule: 0.20, Distanz zur nächsten Einkaufsmöglichkeit: 0.30, Distanz zum Gymnasium: 1.26, Distanz zum Flughafen: 9.33, Distanz zum Hauptbahnhof: 1.71...
Anbieter der Immobilie
IMMOcontract Immobilien Vermittlung GmbH
Schnirchgasse 17, 1030 WIEN
Online-ID: 2mang5j
Referenznummer: 133037
Finde Angebote wie dieses
Hier geht es zu unserem Impressum, den Allgemeinen Geschäftsbedingungen, den Hinweisen zum Datenschutz und nutzungsbasierter Online-Werbung.