
ohne-makler.net - Immobilien selbst vermarkten
Privat von Clemens Meinke
Kontaktiere den Anbieter schriftlich, es ist keine Telefonnummer hinterlegt.
Preise & Kosten
Provision für Käufer
provisionsfrei
Lage
Die 7000 Einwohner fassende Ortschaft Bardowick liegt nördlich von Lüneburg, ca. 7 Kilometer vom Stadtkern (Marktplatz Lüneburg) entfernt. Mit den öffentlichen Verkehrsmitteln ist die Lüneburger Innenstadt in ca. 20 Minuten zu erreichen, mit dem Pkw sind es 15 Minuten. Bardowick verfügt über eine große Auswahl von...
Die Wohnung
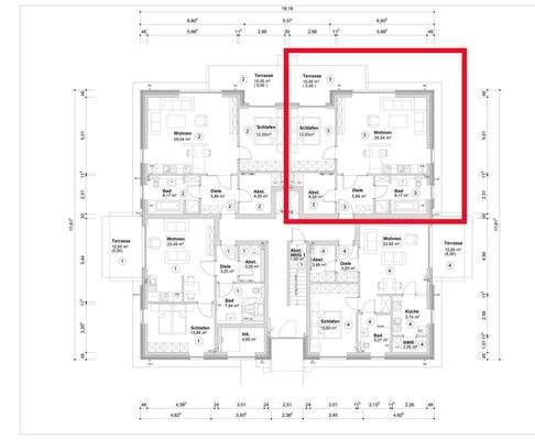
Wohnungslage
Erdgeschoss
Bezug
01.02.2026
Wohnanlage
Energie & Heizung
Warum sehe ich diese Anzeige? – Du siehst diese Anzeige basierend auf Ihrer Navigation auf unserer Website und den Suchkriterien, die du verwendet hast.
Energieausweistyp
Verbrauchsausweis
Gebäudetyp
Wohngebäude
Effizienzklasse
A+
Endenergieverbrauch
14,00 kWh/(m²·a)
Weitere Energiedaten
Heizungsart
Fußbodenheizung, Luft-/Wasser-Wärmepumpe
Details
Objektbeschreibung
Die Wohnung befindet sich in einem dreistöckigen Mehrfamilienhaus und ist Teil der Wohnanlage "Westermarsch-Höfe" in Bardowick, welches im Februar 2021 fertig gestellt wurde. Der Gesamtkomplex beinhaltet 42 Wohnungen verteilt auf vier Gebäude. Bei der Wohnung handelt es sich um eine Wohnung auf einem Erbpachtgrundstück...
Ausstattung
Terrasse, Garten, Fahrstuhl, Vollbad, Duschbad, Einbauküche, Barrierefrei
Bemerkungen:
Die Wohnung verfügt über einen Flur, der Platz für eine Garderobe lässt, einen großzügigen Abstellraum und ein modernes Badezimmer. Wohn- und Schlafzimmer sind durch die großen Fenster hell und gut ausgeleuchtet.
Die offene...
Preisinformation
1 Stellplatz
Weitere Informationen
Sonstiges
Heizungsart: Fußbodenheizung
Energieträger: Luft-/Wasserwärme
Sehr geehrte Interessent*innen,
bitte beachten Sie, dass Hunde & Katzen in den Wohnungen nicht gestattet sind!
Um einen Besichtigungstermin für die Wohnung zu vereinbaren, rufen Sie mich gerne werktags zwischen 09:00 Uhr und 13:00...
Anbieter der Immobilie
ohne-makler.net - Immobilien selbst vermarkten
Humboldtstr. 25 A, 21509 Glinde
Privat von Clemens Meinke
Dein Ansprechpartner
Kontaktiere den Anbieter schriftlich, es ist keine Telefonnummer hinterlegt.
Online-ID: 2mapb5r
Referenznummer: 414770
Finde Angebote wie dieses
Hier geht es zu unserem Impressum, den Allgemeinen Geschäftsbedingungen, den Hinweisen zum Datenschutz und nutzungsbasierter Online-Werbung.