
SGI Immobilien
Frau Karin Heberer
+49 ···
Nr. anzeigenPreise & Kosten
Provision für Käufer
7,14% inkl. gesetzl. Mehrwertsteuer aus dem notariell beurkundeten Kaufpreis
Handelt es sich bei der im Exposé angegebenen Immobilie um ein 1- Familienhaus oder um eine Eigentumswohnung, so gilt die Provisionsteilung nach den Bestimmungen des § 6
Lage
Glauburg ist eine Gemeinde im hessischen Wetteraukreis, die durch ihre ruhige Lage und hervorragende Anbindung an das Rhein-Main-Gebiet überzeugt.
Das Gewerbeobjekt befindet sich am südwestlichen Rand des Ortsteils Glauberg, der durch die Bundessstraße B521 und B521a gut an die umliegenden Orte angebunden ist. Die Gemeinde...
Das Grundstück
Kategorie
Gewerbe-Grundstück
Details
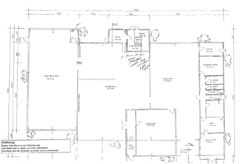
Objektbeschreibung
Zum Verkauf steht dieses gut geschnittene Gewerbeobjekt in Glauburg, das durch seine praktische Aufteilung und die vielseitigen Nutzungsmöglichkeiten überzeugt. Es kombiniert helle Büroräume im vorderen Bereich mit einer großzügigen Lagerhalle im hinteren Teil und bietet damit ideale Voraussetzungen für Gewerbe-, Handels-...
Ausstattung
- Massivbauweise, Stahlträgerhalle
- Satteldach
- Außenwandflächen: Putz, teilweise verkleidet
- Doppelverglaste Holzfenster
- Bodenbeläge: Betonboden, PVC , Fliesen, Teppich
- Zentrale Hackschnitzelheizung
- Durchlauferhitzer
- 3 Rolltore
- Abstellplätze
Weitere Informationen
Sonstiges
Aktuelle Nutzung:
Derzeit produzierender Betrieb/ Übergabe kann kurzfristig erfolgen
Sonstiges:
Bei dem Kaufpreis handelt es sich um einen Netto-Kaufpreis. Die Optimierung zur Umsatzsteuer ist erforderlich.
Energieausweis:
Verbrauchsausweis
Energiebedarf: 77,5 kWh/(m²·a...
Anbieter der Immobilie
SGI Immobilien
Lyoner Straße 20, 60528 Frankfurt am Main
Online-ID: 2maqe5c
Referenznummer: SG25250
Finde Angebote wie dieses
Hier geht es zu unserem Impressum, den Allgemeinen Geschäftsbedingungen, den Hinweisen zum Datenschutz und nutzungsbasierter Online-Werbung.