Vonovia SE-Selbstständiger Vertriebspartner

Frau Franziska Scherf

Gewerbeimmobilie in Top-Lage Kreuzberg zu verkaufen Frei ab 10/2026

€ 4.085,67
Preis/m²
146,61 m²
Verkaufsfläche ca.
k.A.
Teilbare Fläche
0,5
Zimmer

Der Anbieter dieses Objekts hat gegenüber der AVIV Germany GmbH als Betreiber dieses Online-Marktplatzes erklärt, nicht als Unternehmer im Sinne des § 1 KSchG zu handeln. Die im Verbraucherschutzrecht der Union verankerten Verbraucherrechte (insbesondere Informationspflichten und Rücktritts- bzw. Widerrufsrechte) finden auf den Vertrag zwischen dem Anbieter des Objekts und Ihnen (dem Interessenten) keine Anwendung.

Provisionsfrei
Gewerblicher Anbieter

Der Anbieter dieses Objekts hat gegenüber der AVIV Germany GmbH als Betreiber dieses Online-Marktplatzes erklärt, als Unternehmer im Sinne des § 1 KSchG zu handeln.

AdresseHasenheide 48
10967 Berlin 
(Kreuzberg)
Auf Karte ansehen

Preise & Kosten

Preis/m² € 4.085,67 Kaufpreis € 599.000 Hausgeld € 1.029

Provision für Käufer

provisionsfrei

Lage

Die Gewerbefläche befindet sich im Erdgeschoss eines typischen Kreuzberger Altbaus in einer beliebten Umgebung mit hohem Publikumsaufkommen. Das Umfeld ist geprägt von einer lebendigen Mischung aus Gastronomie, Kultur, Einzelhandel und Wohnbebauung. Die hervorragende Anbindung an den öffentlichen Nahverkehr sowie die Nähe zu...

Mehr anzeigen

Die Ladenfläche

Kategorie

Laden

Baujahr

1700

Bezug

01.10.2026

Derzeitige Nutzung

vermietet

Erdgeschoss

Energie & Heizung

0 50 100 150 200 250 300 350 400 +

Energieausweistyp

Bedarfsausweis

Gebäudetyp

Wohngebäude

Baujahr laut Energieausweis

1900

Gültigkeit

seit 01.01.2014

Endenergiebedarf

113,00 kWh/(m²·a)

Weitere Energiedaten

Energieträger

Gas

Heizungsart

Zentralheizung

Details

Objektbeschreibung

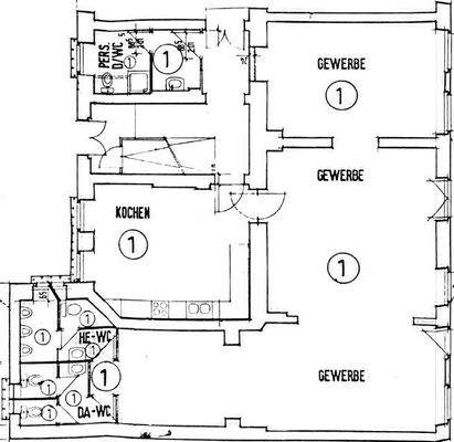
Zum Verkauf steht eine vielseitig nutzbare Gewerbeeinheit im Erdgeschoss eines historischen Altbaus aus dem Jahr 1700. Die Immobilie befindet sich im beliebten Kreuzberg und bietet mit einer Gesamtfläche von ca. 146,61 m² ideale Voraussetzungen für unterschiedlichste Nutzungskonzepte.

Die Einheit wird derzeit als...

Mehr anzeigen

Weitere Informationen

Stichworte
Gesamtfläche: 146,61 m², 6 Etagen

Anbieter der Immobilie

Partner

Vonovia SE-Selbstständiger Vertriebspartner

im Durchschnitt  3,70  Sterne
(bei 81 Bewertungen)

Universitätsstr. 133, 44803 Bochum

user

Frau Franziska Scherf

Dein Ansprechpartner

Anbieter-Website Anbieter-Profil Anbieter-Impressum

Online-ID: 2maqv5l

Referenznummer: 40098-01

Finde Angebote wie dieses

imageimageimage

Hier geht es zu unserem Impressum, den Allgemeinen Geschäftsbedingungen, den Hinweisen zum Datenschutz und nutzungsbasierter Online-Werbung.