
Alexander Immobilien
Frau Nicole Alexander
021 ···
Nr. anzeigenPreise & Kosten
Provision für Käufer
Bei Abschluss eines notariellen Kaufvertrages fällt für den Käufer eine Maklerprovision in Höhe von 5,36 % inkl. MwSt. vom notariell beurkundeten Kaufpreis an die Alexander Immobilien an. Die Courtage ist fällig bei Abschluss des Kaufvertrages.
Lage
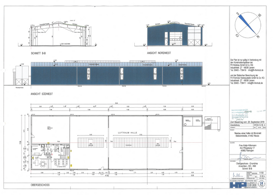
Die Gewerbehalle befindet sich in hervorragender Lage an der Bataverstraße 101 in 41462 Neuss, mitten in einem etablierten und dynamisch wachsenden Gewerbeumfeld. Die Umgebung ist geprägt von mehreren leistungsstarken Gewerbe- und Industriegebieten, die sich durch eine hohe Unternehmensdichte, moderne Infrastruktur und eine...
Die Industriefläche
Kategorie
Produktionshalle
Baujahr
2019
Bezug
01.01.2026
Geschosse
2 Geschosse
Energie & Heizung
Warum sehe ich diese Anzeige? – Du siehst diese Anzeige basierend auf Ihrer Navigation auf unserer Website und den Suchkriterien, die du verwendet hast.
Weitere Energiedaten
Energieträger
Pellets
Heizungsart
Fußbodenheizung, Zentralheizung
Details
Objektbeschreibung
Diese moderne Produktionshalle in Neuss setzt ein klares Statement für effizientes Arbeiten, technische Zukunftsfähigkeit und hochwertige Gewerbearchitektur. Das Gebäude wurde 2019 nach damaligem Top-Standard errichtet und präsentiert sich heute in einem Zustand, der präzise auf produktive Abläufe, Energieeffizienz und...
Ausstattung
• Ca. 670,29 m² Nutzfläche, davon ca. 594,72 m² Produktions- und Lagerfläche im
Erdgeschoss und ca. 75,57 m² Bürofläche und Sozialräume im OG
• Ca. 2.386 m² Grundstücksfläche
• Baujahr 2019
• Moderne Pelletheizung mit eigener Pelletierpresse
• Fußbodenheizung auf gesamter Fläche
• Durchgehend gegossene...
Weitere Informationen
Sonstiges
Eine diskrete Außenbesichtigung ist jederzeit möglich. Für eine Innenbesichtigung stimmen Sie bitte einen Termin mit uns ab. Bitte überzeugen Sie sich vor Terminabsprache für die Innenbesichtigung davon, dass Ihnen die Lage des Objektes zusagt. Die vollständige Adresse der Immobilie erfahren Sie von uns...
Anbieter der Immobilie
Alexander Immobilien
Römerstraße 67, 41539 Dormagen
Online-ID: 2marn5k
Finde Angebote wie dieses
Hier geht es zu unserem Impressum, den Allgemeinen Geschäftsbedingungen, den Hinweisen zum Datenschutz und nutzungsbasierter Online-Werbung.