
Anton Schmittlein Construction GmbH
Frau Jessica Rubert
+49 ···
Nr. anzeigenPreise & Kosten
Provision für Käufer
provisionsfrei
Lage
Die Immobilie in der Seestraße 79 b in Hönow-Hoppegarten bietet eine ideale Umgebung für Familien.
In unmittelbarer Nähe befinden sich mehrere Schulen, darunter die Bücherwurm-Schule am Weiher und die Schule am Mummelsoll, die jeweils in ca. 15 bis 20 Minuten zu Fuß erreichbar sind. Für die Freizeitgestaltung stehen...
Das Haus
Kategorie
Doppelhaushälfte
Baujahr
1994
Energie & Heizung
Warum sehe ich diese Anzeige? – Du siehst diese Anzeige basierend auf Ihrer Navigation auf unserer Website und den Suchkriterien, die du verwendet hast.
Energieausweistyp
Verbrauchsausweis
Gebäudetyp
Wohngebäude
Wesentliche Energieträger
Gas
Gültigkeit
24.05.2020 bis 23.05.2030
Effizienzklasse
D
Endenergieverbrauch
107,85 kWh/(m²·a)
Weitere Energiedaten
Energieträger
Gas
Details
Objektbeschreibung
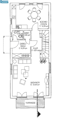
Die 1994 errichtete Doppelhaushälfte befindet sich in der Seestraße 79 b. Das Haus überzeugt mit seinen durchdachten Grundriss in einer ruhigen und gepflegten Wohnanlage mit Dorfcharakter.
Ausstattung
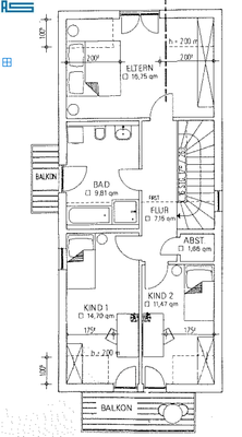
Diese gepflegte Doppelhaushälfte bietet mit ca. 145?m² Wohnfläche und einer durchdachten Raumaufteilung ein komfortables Zuhause für Familien oder Paare mit Platzbedarf.
Im Erdgeschoss befindet sich im Eingangsbereich ein Gäste-WC mit Dusche sowie eine Abstellkammer. Vom Flur aus gelangt man rechter Hand in das...
Weitere Informationen
Stichworte
Anzahl der Schlafzimmer: 3, Anzahl der Badezimmer: 1, Anzahl Balkone: 3, Bundesland: Brandenburg, 2 Etagen
Anbieter der Immobilie
Online-ID: 2maun52
Referenznummer: Hönow DHH
Finde Angebote wie dieses
Hier geht es zu unserem Impressum, den Allgemeinen Geschäftsbedingungen, den Hinweisen zum Datenschutz und nutzungsbasierter Online-Werbung.