
Haus & Grund Mannheim Immobilien GmbH
Pascal Piontek
062 ···
Nr. anzeigenPreise & Kosten
Provision für Käufer
3,57 % (inkl. MwSt.)
Lage
Die Gewerbeeinheit befindet sich in zentraler Lage des Mannheimer Stadtteils Neckarau, einem etablierten Standort mit sehr guter Erreichbarkeit und gewachsenem Gewerbeumfeld. Der Bereich ist geprägt von einer Mischung aus Wohn- und Geschäftshäusern sowie kleinen bis mittelständischen Unternehmen aus den Bereichen...
Büro-/Praxisfläche
Kategorie
Bürofläche
Baujahr
1960
Geschoss
Erdgeschoss
Energie & Heizung
Warum sehe ich diese Anzeige? – Du siehst diese Anzeige basierend auf Ihrer Navigation auf unserer Website und den Suchkriterien, die du verwendet hast.
Wärme
Energieausweistyp
Verbrauchsausweis
Gebäudetyp
Nicht-Wohngebäude
Wesentliche Energieträger
Fernwärme
Gültigkeit
13.04.2018 bis 13.04.2028
Endenergieverbrauch (Wärme)
97,00 kWh/(m²·a)
Weitere Energiedaten
Energieträger
Fernwärme
Details
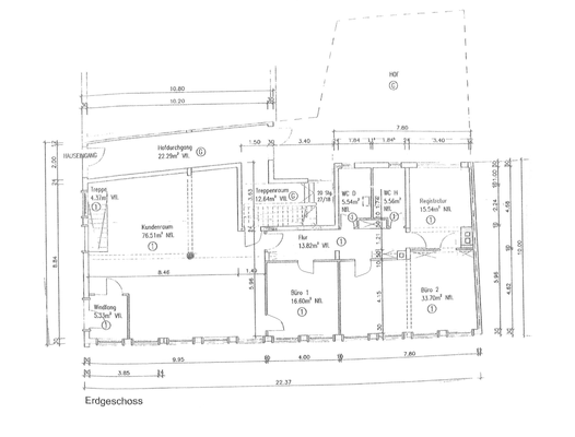
Objektbeschreibung
Diese großzügige Gewerbeeinheit befindet sich im Erdgeschoss eines gepflegten Mehrfamilienhauses im beliebten Mannheimer Stadtteil Neckarau. Direkt gegenüber liegt die Haltestelle "Neckarau-Bahnhof", die eine ideale Anbindung an den öffentlichen Nahverkehr bietet und den Standort sowohl für Kunden als auch für Mitarbeiter...
Weitere Informationen
Stichworte
Bundesland: Baden-Württemberg
Anbieter der Immobilie
Haus & Grund Mannheim Immobilien GmbH
M 6, 16, 68161 Mannheim
Online-ID: 2mavn5c
Referenznummer: 4518579
Finde Angebote wie dieses
Hier geht es zu unserem Impressum, den Allgemeinen Geschäftsbedingungen, den Hinweisen zum Datenschutz und nutzungsbasierter Online-Werbung.