

RE/MAX HOMEfriends Berlin
Herr Torsten Radloff
+49 ···
Nr. anzeigenPreise & Kosten
Provision für Käufer
3,57% inkl. MwSt.
Lage
Karow - ein Stadtteil mit urbanem Charme und dörflicher Idylle gelegen im Nordosten von Berlin, im Bezirk Pankow und direkt an der Grenze zu Brandenburg. Umgeben von Wald und Wiesen bietet Karow seinen Bewohnern eine Mischung aus urbanem und ländlichem Lebensgefühl.
Hier zu wohnen ist vor allem bei Familien und Paaren...
Das Haus
Kategorie
Einfamilienhaus
Baujahr
1930
Energie & Heizung
Warum sehe ich diese Anzeige? – Du siehst diese Anzeige basierend auf Ihrer Navigation auf unserer Website und den Suchkriterien, die du verwendet hast.
Weitere Energiedaten
Energieträger
Gas
Details
Objektbeschreibung
Charmantes 1930er-Haus zum Bodenrichtwert-Grundstückspreis - jetzt reduziert auf 475.000 €!
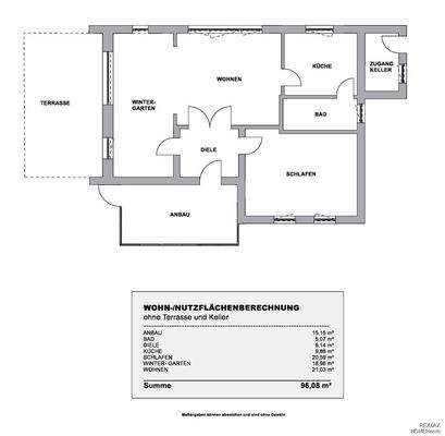
Hier kaufen Sie das Grundstück zum Bodenrichtwert und bekommen das sanierungsbedürftige Einfamilienhaus quasi geschenkt. Mit über 96 m² Wohnfläche auf einer Ebene, einem lichtdurchfluteten Wintergarten und einem weitläufigen...
Ausstattung
- erbaut in massiver Bauweise um 1930 auf einem 1.006 m² großen Grundstück
- voll erschlossen
- robuste Holz-Eingangstür mit 3-fach-Verriegelung
- 2 Zimmer, zzgl. Wintergarten angrenzend an Wohnbereich und zzgl. beheizter Anbau
- großzügige Wohnräume
- Fenster 1995 erneuert, Holz, überwiegend mit...
Weitere Informationen
Sonstiges
Alle Daten in diesem Exposee beruhen auf Angaben des Verkäufers bzw. dessen Bevollmächtigten. Die Objektangabe wurden mit großer Sorgfalt zusammengestellt. Für die Richtigkeit des Verkäufer-, Anbieter- und Angebotsangaben können wir keine Haftung übernehmen.
Die zu zahlende Käuferprovision beträgt 3,57%...
Anbieter der Immobilie

Online-ID: 2maxm5g
Referenznummer: 1150-290-25TR-BK23c
Finde Angebote wie dieses
Hier geht es zu unserem Impressum, den Allgemeinen Geschäftsbedingungen, den Hinweisen zum Datenschutz und nutzungsbasierter Online-Werbung.