
Grüne & Co. RDM Immobilienmakler seit 1939
Herr/Frau Alexandra Reintjes
028 ···
Nr. anzeigenPreise & Kosten
Kaution
8.280,00
Provision für Mieter
2 Nettomieten zzgl. 19 % MwSt.
Warum sehe ich diese Anzeige? – Du siehst diese Anzeige basierend auf Ihrer Navigation auf unserer Website und den Suchkriterien, die du verwendet hast.
Lage
Die angebotene Produktions- und Lagerhalle befindet sich auf der Weyerhofstraße 65 in 47803 Krefeld, in einem etablierten und gut erreichbaren Gewerbegebiet im Norden der Stadt. Der Standort zeichnet sich durch seine verkehrsgünstige Lage, die Nähe zu wichtigen Verkehrsknotenpunkten sowie eine solide gewerbliche Nachbarschaft...
Die Industriefläche
Kategorie
Produktionshalle
Baujahr
1975
Bezug
ab sofort
Energie & Heizung
Warum sehe ich diese Anzeige? – Du siehst diese Anzeige basierend auf Ihrer Navigation auf unserer Website und den Suchkriterien, die du verwendet hast.
Wärme
Energieausweistyp
Verbrauchsausweis
Gebäudetyp
Nicht-Wohngebäude
Wesentliche Energieträger
GAS
Gültigkeit
bis 03.04.2027
Endenergieverbrauch (Wärme)
129,30 kWh/(m²·a)
Details
Objektbeschreibung
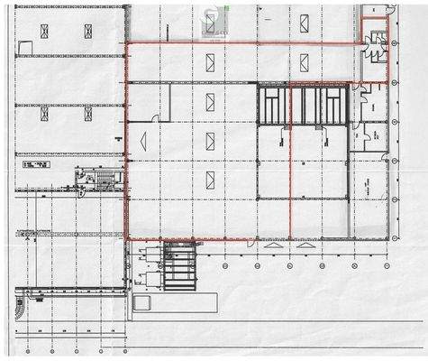
Bei dieser Immobilie handelt es sich um eine Teilfläche, die sich in einem im Jahr 1975 errichteten Lager- und Produktionsfläche befindet.
Die Halle verfügt über insgesamt ca. 920 m². Die Objektausstattung verfügt über die gängige Ausstattung und einen Beton-Boden. Die Deckenhöhe beträgt 4,50 m (unter Binder 4,0...
Weitere Informationen
Sonstiges
Alle in diesem Angebot enthaltenen Angaben, insbesondere Flächenangaben, beruhen auf Angaben des Eigentümers oder von Dritten. Eine Haftung aus Exposé Angaben ist grundsätzlich und gänzlich dem Makler gegenüber ausgeschlossen. Im Übrigen gelten unsere allgemeinen Geschäftsbedingungen.
Bei...
Anbieter der Immobilie

Grüne & Co. RDM Immobilienmakler seit 1939
Uerdinger Str. 61, 47441 Moers
Online-ID: 2may454
Referenznummer: 2159-2025
Finde Angebote wie dieses
Hier geht es zu unserem Impressum, den Allgemeinen Geschäftsbedingungen, den Hinweisen zum Datenschutz und nutzungsbasierter Online-Werbung.