
Immosiv - Exklusive Immobilien, Inh. Michaela Beer
Frau Michaela Beer
+49 ···
Nr. anzeigenPreise & Kosten
Provision für Käufer
3,57% inkl. 19% USt. vom Kaufpreis, zahlbar vom Käufer an Immosiv - Exklusive Immobilien.
Die Provision ist fällig und verdient mit Beurkundung des Kaufvertrags.
Es wurde ein Maklervertrag in gleicher Höhe mit dem Verkäufer abgeschlossen.
Lage
Die Immobilie befindet sich in der ruhigen und grünen Schönwalde-Siedlung, einem Ortsteil der Gemeinde Schönwalde-Glien im Landkreis Havelland. Die Umgebung ist geprägt von Einfamilienhäusern und Gärten - ideal für alle, die eine naturnahe Wohnlage mit guter Erreichbarkeit zur Hauptstadt wünschen. Einkaufsmöglichkeiten, Ärzte...
Das Haus
Kategorie
Bungalow
Baujahr
1980
Bezug
sofort
Energie & Heizung
Warum sehe ich diese Anzeige? – Du siehst diese Anzeige basierend auf Ihrer Navigation auf unserer Website und den Suchkriterien, die du verwendet hast.
Energieausweistyp
Verbrauchsausweis
Gebäudetyp
Wohngebäude
Wesentliche Energieträger
Gas
Gültigkeit
20.11.2025 bis 19.11.2025
Effizienzklasse
G
Endenergieverbrauch
223,50 kWh/(m²·a) - Warmwasser enthalten
Weitere Energiedaten
Energieträger
Gas
Details
Objektbeschreibung
In der ruhigen und grünen Schönwalde-Siedlung erwartet Sie dieser charmante Bungalow - ideal für alle, die ein behagliches Zuhause mit viel Privatsphäre und naturnahem Umfeld suchen.
.
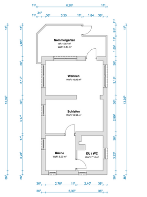
Das Haus bietet ca. 57 m² Wohnfläche und wurde zuletzt im Jahr 2000 modernisiert. Die Raumaufteilung ist durchdacht und praktisch...
Ausstattung
- Einbauküche im klassischen Stil
- Wintergarten mit Gartenblick
- Nebengebäude mit Zimmer und Duschbad
- Werkstatt
- Holzgarage und zusätzliche Stellflächen
- Gepflegter Garten mit Teich
- Fliesenboden, teils Teppich
- Modernisierung zuletzt ca. 2000
Preisinformation
3 Garagenstellplätze
Weitere Informationen
Sonstiges
Provisionspflichtig für den Käufer. Die Provision beträgt 3,57% inkl. 19 % USt. und ist verdient und fällig mit Kaufvertragsunterzeichnung. Es wurde ein Maklervertrag mit dem Verkäufer in gleicher Höhe abgeschlossen.
Alle gemachten Angaben zu Objekten sind ohne Gewähr und basieren ausschließlich auf...
Anbieter der Immobilie
Online-ID: 2may45j
Referenznummer: EFH Fasan6
Finde Angebote wie dieses
Hier geht es zu unserem Impressum, den Allgemeinen Geschäftsbedingungen, den Hinweisen zum Datenschutz und nutzungsbasierter Online-Werbung.