
Sparkasse Vogtland
Frau Antje Lux
037 ···
Nr. anzeigenPreise & Kosten
Provision für Mieter
provisionsfrei
Warum sehe ich diese Anzeige? – Du siehst diese Anzeige basierend auf Ihrer Navigation auf unserer Website und den Suchkriterien, die du verwendet hast.
Lage
Das Wohn- und Geschäftshaus liegt im Zentrum von Treuen - in der belebten Pfarrstraße. Einkaufsmöglichkeiten sowie eine Haltestelle für öffentliche Verkehrsmittel sind in unmittelbarer Nähe.
Büro-/Praxisfläche
Baujahr
1994
Bezug
sofort
Geschoss
2. Geschoss
Energie & Heizung
Warum sehe ich diese Anzeige? – Du siehst diese Anzeige basierend auf Ihrer Navigation auf unserer Website und den Suchkriterien, die du verwendet hast.
Energieausweistyp
Verbrauchsausweis
Gebäudetyp
Wohngebäude
Baujahr laut Energieausweis
1994
Wesentliche Energieträger
Gas
Gültigkeit
13.04.2018 bis 13.04.2028
Endenergieverbrauch
103,00 kWh/(m²·a) - Warmwasser enthalten
Weitere Energiedaten
Energieträger
Gas
Heizungsart
Zentralheizung
Details
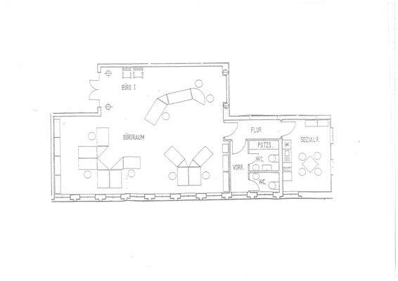
Objektbeschreibung
Kurzbeschreibung
Attraktive Gewerbefläche für vielseitige Nutzung
Objekt
Kanzlei-, Praxis- Agentur- oder Büroräume 130 qm in zentraler Lage im Wohn- und Geschäftshaus der Sparkasse Vogtland.
Großzügige und zugleich effiziente Raumaufteilung mit Funktionsraum/- Teeküche.
Die hier angebotenen Räume befinden...
Ausstattung
Datenverkabelung, zwei WC-Räume, Einbruchsschutz
Preisinformation
Nettokaltmiete: 650,00 EUR
Weitere Informationen
Sonstiges
Für die Richtigkeit der Angaben können wir keine Gewähr übernehmen. Eine Zwischenvermietung behält sich der Auftraggeber/Vermieter ausdrücklich vor. Wir bitten um Verständnis, dass wir nur vollständige, schriftliche Anfragen (E-Mail, Fax, Brief) mit Namen, Anschrift und Telefonnummer beantworten können. Gern...
Anbieter der Immobilie
Sparkasse Vogtland
Komturhof 2, 08527 Plauen
Online-ID: 2mayc5q
Referenznummer: -2017
Finde Angebote wie dieses
Hier geht es zu unserem Impressum, den Allgemeinen Geschäftsbedingungen, den Hinweisen zum Datenschutz und nutzungsbasierter Online-Werbung.