
ohne-makler.net - Immobilien selbst vermarkten
Angebot von JOWI Immo GmbH
Kontaktiere den Anbieter schriftlich, es ist keine Telefonnummer hinterlegt.
Preise & Kosten
Provision für Käufer
provisionsfrei
Lage
Der Bungalow entsteht im Neubaugebiet Gleitsweg in Irchenrieth. Der Standort verbindet kurze Wege zu Einkaufsmöglichkeiten, Schulen, Kinderbetreuung sowie medizinischer Versorgung. Die Nähe zu Weiden i.d.OPf. und der A6 ermöglicht eine gute Anbindung an regionale Arbeitgeber und umliegende Städte.
Die Umgebung ist...
Das Haus
Kategorie
Bungalow
Baujahr
2025
Bezug
nach Absprache
Energie & Heizung
Warum sehe ich diese Anzeige? – Du siehst diese Anzeige basierend auf Ihrer Navigation auf unserer Website und den Suchkriterien, die du verwendet hast.
Energieausweistyp
Bedarfsausweis
Gebäudetyp
Wohngebäude
Effizienzklasse
A+
Endenergiebedarf
23,00 kWh/(m²·a)
Weitere Energiedaten
Heizungsart
Fußbodenheizung, Luft-/Wasser-Wärmepumpe
Details
Objektbeschreibung
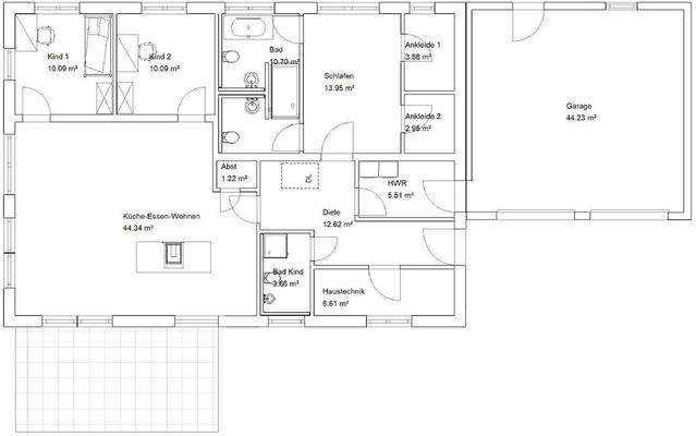
Der massiv gebaute Neubau-Bungalow wird derzeit errichtet und ist ab Juli 2026 bezugsfertig. Das Gebäude bietet ein ebenerdiges Wohnkonzept mit einem offenen Wohn-, Ess- und Kochbereich, der direkt an den Eingangsbereich anschließt. Die Küche mit Kochinselvorbereitung verfügt über einen separaten Abstellraum. Der...
Ausstattung
Terrasse, Garten, Vollbad, Duschbad, Gäste-WC, Barrierefrei, Parkett, Fliesen
Bemerkungen:
Ausstattungsmerkmale:
- 2,80 m Raumhöhe, bodentiefe Fenster mit 2,50 m Höhe
- Villeroy & Boch-Fliesen in Bad- und Funktionsbereichen
- Parkettboden im Wohnbereich
- Fußbodenheizung im gesamten Haus
-...
Preisinformation
2 Garagenstellplätze
Weitere Informationen
Sonstiges
Heizungsart: Fußbodenheizung
Energieträger: Luft-/Wasserwärme
JOWI Immo GmbH
Sitz und Registrierung: Nürnberg, AG Nürnberg HRB 44975
vertreten durch ihren Geschäftsführer
Josef H. Sechser M. Sc. Real Estate
Ostendstraße 161, 90482 Nürnberg
Telefon +49 172 82 56...
Anbieter der Immobilie
ohne-makler.net - Immobilien selbst vermarkten
Humboldtstr. 25 A, 21509 Glinde
Angebot von JOWI Immo GmbH
Dein Ansprechpartner
Kontaktiere den Anbieter schriftlich, es ist keine Telefonnummer hinterlegt.
Online-ID: 2mayq5f
Referenznummer: 409554
Finde Angebote wie dieses
Hier geht es zu unserem Impressum, den Allgemeinen Geschäftsbedingungen, den Hinweisen zum Datenschutz und nutzungsbasierter Online-Werbung.