

Management Immobilien Heinemann e.K.
Herr Ronny Yunus
015 ···
Nr. anzeigenPreise & Kosten
Provision für Käufer
5.950 € inkl. 19% gesetzl. MwSt.
Käuferprovision: 5.950 € inkl. 19% MwSt.
Mit Abschluss des notariellen Kaufvertrages zahlen Verkäufer und Käufer jeweils eine Provision in Höhe von 5.950 € inkl. 19% MwSt.
Lage
Die Immobilie liegt im Bremerhavener Stadtteil Lehe (27580), einem gewachsenen Wohnquartier nördlich der Innenstadt. Der Stadtteil verbindet städtische Infrastruktur mit ruhigen Wohnbereichen und bietet ein vielfältiges Umfeld aus Altbauquartieren, modernisierten Mehrfamilienhäusern und kleineren Wohnsiedlungen. Der tägliche...
Das Haus
Kategorie
Doppelhaushälfte
Baujahr
1951
Bezug
Sofort
Energie & Heizung
Warum sehe ich diese Anzeige? – Du siehst diese Anzeige basierend auf Ihrer Navigation auf unserer Website und den Suchkriterien, die du verwendet hast.
Energieausweistyp
Bedarfsausweis
Gebäudetyp
Wohngebäude
Wesentliche Energieträger
Gas
Gültigkeit
18.08.2025 bis 17.08.2035
Effizienzklasse
G
Endenergiebedarf
215,90 kWh/(m²·a)
Weitere Energiedaten
Energieträger
Gas
Details
Objektbeschreibung
Entdecken Sie diese Doppelhaushälfte in einer ruhigen und familienfreundlichen Wohngegend von Bremerhaven. Mit einer Wohnfläche von 94,35 m² und einem weitläufigen Grundstück von 600 m² bietet dieses Zuhause ausreichend Platz für die ganze Familie.
Die 4,5 Zimmer verteilen sich auf zwei Etagen und bieten zahlreiche...
Ausstattung
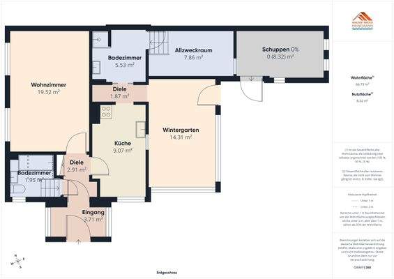
Erdgeschoss
- Wohnzimmer
- Küche
- Badezimmer mit Wanne
- Badezimmer mit Dusche
- kleiner Kellerraum
- Wintergarten
Dachgeschoss
- 2 Schlafzimmer
- 1 Durchgangszimmer
Modernisierungen
- 2000 Dämmung der Fassade (30mm)
- 2006 Gasheizung mit Solarthermie
- 2012...
Preisinformation
2 Garagenstellplätze
Weitere Informationen
Sonstiges
Möchten Sie Ihre eigenen Ideen und Eindrücke zu dieses Hauses sammeln? Dann vereinbaren Sie jetzt Ihren privaten Kennenlerntermin!
KH Management Immobilien Heinemann - Ronny Yunus - selbstständiger Immobilienmakler
Tel. 0152 / 07669080
Alle Daten in diesem Exposé beruhen auf Angaben des Verkäufers...
Anbieter der Immobilie

Online-ID: 2maz95h
Referenznummer: MIH - 226
Finde Angebote wie dieses
Hier geht es zu unserem Impressum, den Allgemeinen Geschäftsbedingungen, den Hinweisen zum Datenschutz und nutzungsbasierter Online-Werbung.