

IMMOBASE | DENKMAL & NEUBAU IMMOBILIEN in LEIPZIG
Herrn Alexander George
034 ···
Nr. anzeigenPreise & Kosten
Provision für Käufer
provisionsfrei
Lage
Durch die Nähe zu Kindergärten, Schulen und zahlreichen Einkaufsmöglichkeiten für den täglichen Bedarf, trägt die Lage der zur Lebens- und Wohnqualität bei.
Hervorzuheben ist die hervorragend ausgebaute Infrastruktur. Anbindungen für Nah- und Fernverkehr sind in der unmittelbaren Umgebung zu finden, Straßenbahn- und...
Die Wohnung
Wohnungslage
Dachgeschoss
Wohnanlage
Energie & Heizung
Warum sehe ich diese Anzeige? – Du siehst diese Anzeige basierend auf Ihrer Navigation auf unserer Website und den Suchkriterien, die du verwendet hast.
Weitere Energiedaten
Energieträger
Blockheizkraftwerk, Gas
Heizungsart
Fußbodenheizung, Zentralheizung
Details
Objektbeschreibung
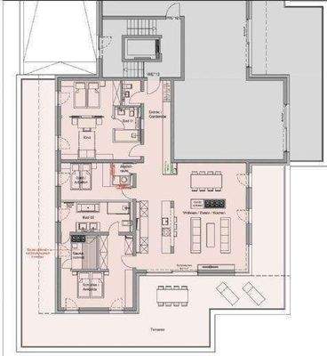
GARTENWOHNUNG mit 222m² Wohnfläche + 111m² PRIVATGARTEN / BLICK in den AUENWALD / KAMIN / 2 x TG-SP / ca. 7.000m² eingezäunter Gemeinschaftsgarten
AKTUELL NOCH VERFÜGBAR:
1 x Penthouse mit 4-Zimmern, 247m² Wohnfläche, 142m² Dachterrasse, Kamin- und Saunaanschluss, Klima, KNX Steuerung
1 x...
Weitere Informationen
Sonstiges
WEITERE NEUBAU & DENKMAL IMMOBILIEN in LEIPZIG finden Sie unter: www.IMMOBASE-IMMOBILIEN.de
Das Unternehmen IMMOBASE ist seit vielen Jahren auf den Verkauf hochwertiger DENKMAL und NEUBAU IMMOBILIEN in erstklassigen Lagen spezialisiert. Besonders in Leipzig verfügen wir über gut ausgebaute Netzwerke...
Anbieter der Immobilie
IMMOBASE | DENKMAL & NEUBAU IMMOBILIEN in LEIPZIG
Schreberstraße 13, 04109 Leipzig

Online-ID: 2mb2h5l
Finde Angebote wie dieses
Hier geht es zu unserem Impressum, den Allgemeinen Geschäftsbedingungen, den Hinweisen zum Datenschutz und nutzungsbasierter Online-Werbung.