
RE/MAX Lörrach, Müllheim, Freiburg
Herr Alexander Maier
004 ···
Nr. anzeigenPreise & Kosten
Provision für Käufer
3,57 % inkl. gesetzl. MwSt. (19%) inkl. MwSt.
Lage
Lörrach ist eine Kreisstadt im Südwesten Baden-Württembergs. Sie ist die größte Stadt des gleichnamigen Landkreises und seit dem 1. April 1956 Große Kreisstadt. In der näheren Umgebung liegen der Schwarzwald, das Rheintal sowie Weil am Rhein und die Schweizer Großstadt Basel.
Lörrach pflegt eine lebendige Kultur- und...
Die Wohnung
Wohnanlage
Energie & Heizung
Warum sehe ich diese Anzeige? – Du siehst diese Anzeige basierend auf Ihrer Navigation auf unserer Website und den Suchkriterien, die du verwendet hast.
Energieausweistyp
Verbrauchsausweis
Gebäudetyp
Wohngebäude
Baujahr laut Energieausweis
2020
Wesentliche Energieträger
GAS
Gültigkeit
bis 15.07.2029
Effizienzklasse
D
Endenergieverbrauch
108,00 kWh/(m²·a)
Weitere Energiedaten
Energieträger
Gas
Heizungsart
Zentralheizung
Details
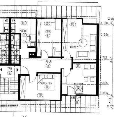
Objektbeschreibung
Ihre Chance zentral in Lörrach!
Sehr profitable Kapitalanlage oder Eigennutz:
4-Zi-ETW in Lörrach-Stadt!
Die Wohnung ist als WG an 4 Mieter zu jeweils WM 450,-€ vermietet.
Insgesamt beträgt die Miete:
WM: 1.920,-€ / Monat
Die Immobilie ist im Moment voll vermietet.
Sämtliche...
Preisinformation
1 Stellplatz
Soll-Mieteinnahmen pro Jahr: 23.040,00 EUR
Weitere Informationen
Stichworte
Stellplatz vorhanden, Nutzfläche: 7,00 m², Anzahl der Schlafzimmer: 3, Anzahl der Badezimmer: 1, Bundesland: Baden-Württemberg
Anbieter der Immobilie
RE/MAX Lörrach, Müllheim, Freiburg
Tumringer Straße 284, 79539 Lörrach
Online-ID: 2mb385t
Referenznummer: 1067-740-1-AM
Finde Angebote wie dieses
Hier geht es zu unserem Impressum, den Allgemeinen Geschäftsbedingungen, den Hinweisen zum Datenschutz und nutzungsbasierter Online-Werbung.